Paso 9: Ajuste de la correa de momento

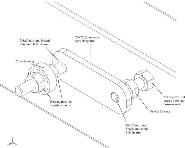
Primero ajuste las correas sobre la pullies instalado justo por encima del punto medio de cada marca un punto en la parte posterior de la correa miembro cruzan luego taladre un agujero de 8mm a través del miembro de la Cruz. Vea el bosquejo sobre cómo construir a un tensor de correa simple y encajar en su lugar en cada banda. Las dos piezas marcan 'K' en la de 5mm. Fichero DXF proporcionan los dos brazos del regulador. La longitud de 75mm para la varilla roscada en el carril de extremo es adecuada para el ancho de mi carril extremo. Esta longitud se debe ajustar para que la varilla puede colocarse a través de su elegido ancho de sección de caja de riel. Asegúrese que la tuerca cautiva soldada al carril extremo tiene una rosca limpia para permitir el ajuste de la varilla roscada.
Cuando los tensores están equipados, ajustar los rodamientos de 22mm por cada banda por medio de las dos tuercas de fijación.