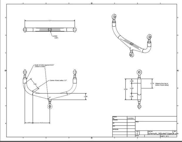
Paso 8: Suspensión delantera











La única manera de que íbamos a conseguir el rendimiento que queríamos que fuera nuestra suspensión era ir con un diseño de un brazo doble de la longitud desigual. (En retrospectiva esto es un diseño de suspensión de alto rendimiento y fue excesivo para un coche solar.)
Teníamos un montón de objetivos para el diseño de la suspensión: (ver vídeo al final)
- Mantener los neumáticos en posición vertical en todo momento (minimizar el ángulo de caída).
- Mantener el de/a la distancia los neumáticos moverse durante la articulación mínimo (minimizar el neumático scrub).
- Golpes no cambio la dirección del coche viaja (cero buey del topetón).
- Proporcionar suficiente capacidad de adaptación para mantener el ángulo de remolque en cero (Mantenga las llantas paralelo).
- Proporcionar suficiente recorrido y una tarifa del resorte apropiado para mantener los neumáticos en contacto con el suelo durante las vueltas.
- Reducir al mínimo el peso general del sistema de suspensión en relación con el resto del coche (mantener una relación de bajo peso soltado/sin muelles)
Los ángulos que los brazos de control están en tienen un enorme efecto en el comportamiento de los vehículos terminados. Para conseguirlo derecho utilizamos dos métodos diferentes:
Modelado geométrico: Uso 2D modelado para comprobar suspensión en varias posiciones para asegurarse de que hay espacio para todo y que todo se articula como debería.
Modelado cinemática: Utilice diagramas de cuerpo libre y los cálculos para asegurarse de que la tarifa del resorte es apropiada.
Al final utilizamos solo ajustable arrollar-sobre choques (engrasados amortiguadores llenados) que se adaptan para arriba con 200 libras o en manantiales. Fue instalado para ser comprimido 50% de su recorrido 4" cuando el coche estaba cargado. Tenga en cuenta que todo esto se realiza en base a nuestra estimación del peso de vehículos terminados. Si nos equivocamos no realiza la suspensión como lo desee! Aquí está una rápida demostración de producto terminado: