Paso 4: El conjunto de x



La x Asamblea contiene algunas piezas impresas 3d. Usted puede encontrar todos estos en Thingiverse. Para el conjunto x, necesitarás:
- 4 x XY-empalme
- 2 x Y-tuerca-titular
También puede hacer que estas partes de la madera, pero entonces tendrás que ser un poco más creativos de uno mismo. :)
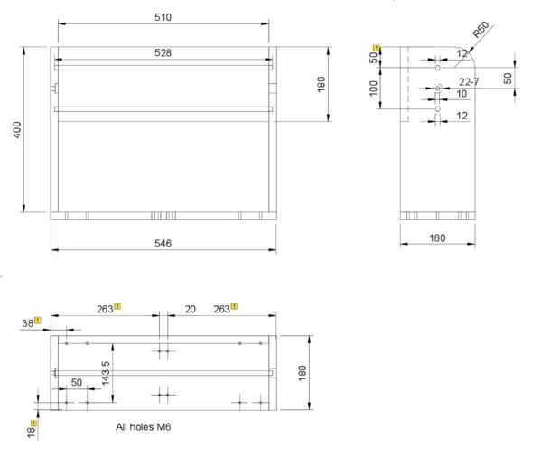
Sierra de la madera como se muestra en el dibujo, pero no atornillar todas las piezas antes de que termine el bloque Z (siguiente paso).
Nota: En el panel de la izquierda, el orificio de 22mm es sólo 7mm de profundidad (rodamiento) y atraviesa el agujero de 10mm. En el panel derecho, atraviesa el agujero de 22mm (debido a la tuerca de acoplamiento).
Actualización: Como la Asamblea Y, 12mm varillas han sido sustituidos por tubos 18mm. Además, ahora hay algunas partes impresas 3d utilizados para ayudar a alinear estos tubos. Se trata de subir a thingiverse así. Otra vez: Si usted trabaja suficientemente precisa, no sería necesario utilizar estas piezas impresas 3d y hacerlo de madera.