Paso 3: El conjunto de y



La Asamblea y es una de las partes para hacer más fácil (y más grande). Os adjunto un edificio plano, en el que todas las dimensiones son en mm.
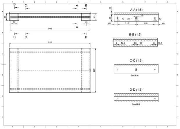
Notas:
- Donde está escrito el 22-7, esto significa que usted necesita perforar un orificio con un diámetro de 22mm, y sólo 7mm de profundidad. Esto es para los rodamientos.
- Grupo A-A y C-C son idénticos.
- Panel B-B y D-D son casi idénticos: en el panel B-B necesita hacer 1 agujero de 22mm para la tuerca de acoplamiento entre el motor paso a paso y la varilla roscada. En el panel D-D no perfore este orificio.
- Los agujeros de 12mm en paneles B-B y D-D son sólo 9 mm de profundidad.
Actualización: 12 mm barras parecían colgar a través de demasiado. Por lo tanto, el diseño fue cambiado para el uso de tubos de 18mm. El dibujo con las dimensiones mantiene igual, sólo en caso de perforación de agujeros de 12mm, 18mm agujeros tienen a taladrar!
Antes de enroscar las piezas de 80mm y 70mm juntos, sujete el primer motor de pasos NEMA17 42BYGHW811 al panel B-B. Luego, coloque la tuerca de acoplamiento y la varilla roscada (corte a 750mm) para el motor paso a paso. Ahora usted puede atornillar las piezas 70mm y 80mm pero no conectar aún la junta grande. De lo contrario no podremos poner la x Asamblea. Terminarás con algo que se parece a la figura 3.