Paso 3: Controlador electrónica





Recoge dos grupos de cables, es decir, todas las conexiones a + 5v y todas las conexiones a tierra, la soldadura de cada grupo y proteger la conexión con calor encogen cinta de tubería o eléctrica. Como alternativa, puede utilizar pequeños capuchones. Hacer que los cables de tres pulgadas, uso el color de código rojo, para + 5v y negro para la tierra del circuito. Debe haber seis negro y rojo cuatro.
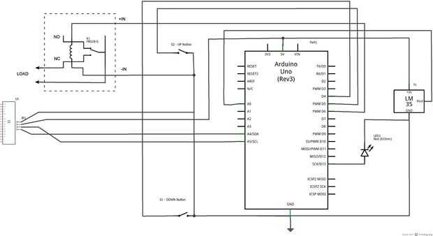
Soldar un cable negro a un contacto de cada uno de los contactos del interruptor de botón pulsador. El otro contacto de cada uno de los interruptores se conectará al pin D4 o D5 de Arduino.
Cátodo el LED con un cable negro de la soldadura. Soldar un cable al ánodo del LED. Esto se conectará al pin D13 de Arduino.
Para las conexiones al controlador LCD, he utilizado cables de puente de la mujer, mujer, que están conectados en pares. Dos parejas hacen un zócalo muy agradable para enganchar en los pasadores del conductor. Un rojo y un cable negro, cada uno conectados a los puentes f/f para fuente de + 5v y tierra para el conductor del LCD. Dos puentes/macho enchufe los conectores de f/f de datos TX y DX a los pines de Arduino A0 y A1. [Como una ocurrencia tardía, podría han usé otro de los conectores de cable de alimentación de PC, como en la cola del interruptor de potencia paso.]
El conector RJ11 tiene dos colores códigos impresos en él. Seguir con el negro/rojo/verde/amarillo. Para el enchufe que va en él, que se conectará con el sensor de temperatura, utilice la orden negro/rojo/verde/amarillo (gancho en la parte inferior) en http://www.westernet.net/Help/RJ45.htm
La conexión a la cola de interruptor de potencia utiliza a un conector de 3,5 mm estéreo. Los tres terminales del gato se llaman anillo, punta y manga. Conecte un cable negro con la manga, un cable amarillo para el anillo y un cable rojo a la punta.