Paso 8: engranaje de gusano carro parte 1




Para este paso usted va a utilizar el 15-5/8" largo de 3/4 programar 40 tubo de PVC.
Hay dos formas de diseño el tubo para el corte.  La forma más fácil sería imprimir ambas páginas del documento PDF WormGearTemplate en tamaño completo y siga el
instrucciones incluidas.
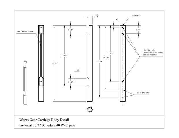
Si no puede imprimir el documento de plantilla correctamente, ver el documento PDF de WormGearCarriageDetail. Contiene todos los detalles y las medidas necesarias para construir el carro.
Si está utilizando la plantilla (recomendada), asegúrese de taladrar los agujeros antes de usar el disco de corte.
Si no está usando la plantilla, perfore los orificios última.
Utilice una herramienta dremel con un disco de corte para cortar el tubo.
Después se perforan los orificios y la tubería cortada, Avellane los agujeros de 3 1/8" de la
dentro de la superficie para #6 tornillos de cabeza plana.  Avellane los orificios de 2 1/16" de la superficie exterior para #4 tornillos de cabeza plana.













