Simulador de movimiento de rana mecánica (13 / 22 paso)

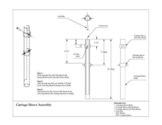
Paso 13: Funda de transporte de la Asamblea

Obtener documento PDF para dibujo detallado e instrucciones.

Artículos Relacionados

Mecánicas arte Bots: Mecanismo de mecanismo de cuatro barras

Mecánicas arte Bots: Mecanismo de mecanismo de cuatro barras

Artbots famoso es divertido crear y ver dibujar. Una de las formas más comunes de les alimentación es utilizando un circuito simple con una batería y un motor de CC con un peso de compensación para crear vibración. El centro de equilibrio del motor h
Rana de cálculo: hacer su propia calculadora mecánica (inédito)

Rana de cálculo: hacer su propia calculadora mecánica (inédito)

Puesto que la escritura este instructable me han revisado el proyecto y ya no sentir que el tutorial que publiqué es la mejor manera de hacer esta calculadora--era demasiado complicado, cortar una caja de té de metal, etc., etc.. Por desgracia, ya qu
Coche de juguete de madera mecánica

Coche de juguete de madera mecánica

este proyecto fue una tarea para la escuela. Actualmente estoy inscrito en mi primer año en la Industrial diseño Licenciatura de tecnología aplicada en el Humber College de Toronto. la asignación fue hacer un juguete de madera con al menos dos difere
Mano mecánica

Mano mecánica

Si te gusta este proyecto, entonces le animo a comprar mi libro, Ingeniero de goma. Está lleno de proyectos más impresionantes y originales hecha a mano de hardware del hogar. Usted puede encontrar donde se venden libros.Los estudiantes harán una man
Araña mecánica robótica

Araña mecánica robótica

Para mi proyecto de tecnología 13 años yo estaba encargada de realizar cualquier proyecto de mi elección para un actor. Me decidí a diseñar, construir e implementar una araña mecánica controlada remota, ya que, ¿por qué no?Este proyecto es una fusión
Pequeño planeta: Un 3D impreso escultura mecánica

Pequeño planeta: Un 3D impreso escultura mecánica

He creado esta pequeña escultura mecánica utilizando piezas impresas casi totalmente 3D. Los ejes son de acero, y hay algunos hardware del metal, así: eje collares para sostener los ejes/engranajes en su lugar, unos cojinetes con bridas de bronce y a
Construir una caja de música mecánica programable

Construir una caja de música mecánica programable

¿Si alguna vez has visto esas cajas de música de viento poco, o manivela, y juegan una pequeña melodía una y otra vez de metal un pequeño tambor de notas, pero deseo que hicieran más que reproducir la misma melodía de 10 segundos una y otra vez para
Mecánica reloj de la CPU

Mecánica reloj de la CPU

El reloj mecánico de CPU muestra los bloques básicos de una CPU (ALU, autobuses, RAM, registros y una unidad de Control). Ejecuta un conjunto de instrucciones que emulará un reloj de pared simple.La inspiración para este proyecto vino de intentar ens
Flor mecánica (utilizando Arduino)

Flor mecánica (utilizando Arduino)

Hola,para un proyecto escolar (un equipo de 3 estudiantes de diseño de interacción) creamos una flor mecánica que se abre cuando alguien trata de cerca de un sensor de movimiento. Cuando el sensor no detecta ningún movimiento, se cierra.Lo que usted
Mano mecánica utilizando sólo comida rápida paja - paja Builder proyecto #1

Mano mecánica utilizando sólo comida rápida paja - paja Builder proyecto #1

paja Builder proyecto #1: mano mecánica con solo comida rápida pajasCon todos mis proyectos paja, puede tomar orgullo en el uso de materiales disponibles.  A diferencia de otros juguetes de construcciones, el proceso de fijación es parte del material
Araña mecánica

Araña mecánica

Sería difícil competir con laaumenta la eficiencia de una rueda sobre superficies duras sino como condición de rozamiento de rodadura, este vínculo se hace más viable y ruedas de tamaño similar no pueden manejar obstáculos que este vínculo es capaz d
Pinball de mesa mecánica (IMPROVED instructable)

Pinball de mesa mecánica (IMPROVED instructable)

Este pequeño video muestra, todo el proyecto y los pasos escritos a continuación. Se los pasos para más detalles. Toda la máquina de pinball se realiza en aprox. 100 horas y costar menos de 100$.1. planificar y dibujar el diseño de tabla en un papel
Mecánica de papel - parte 1: La corredera

Mecánica de papel - parte 1: La corredera

Esta mecánica de papel libro popup estilo consiste en tirar una ficha y tirar con una parte de una escena en una línea recta en la misma dirección de la ficha.He utilizado papel de la impresora normal para este proyecto, pero los resultados serán más
3-d imprime mecánica a pie de Robot de juguete!

3-d imprime mecánica a pie de Robot de juguete!

Es un robot de juguete totalmente mecánico que diseñé. Cada parte puede ser impreso, enarenada y montado! Hay un interno mecánico sistema del chasis y dentro de este robot y puede mover brazos y piernas.Paso 1: Archivo de Solidworks - Robot de impres