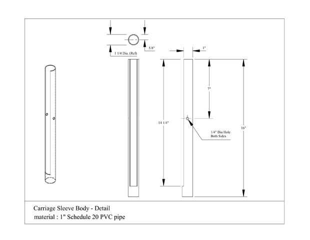
Paso 10: Carro manga cuerpo

Taladre un orificio de diámetro de 1/4" a través del centro de la tubería de 7" desde el extremo superior.
A partir de la parte superior, cortar longitudinalmente el tubo paralelo al agujero perforado, 1/4" en el borde,
parada 1-3/4" de la parte inferior.  En el punto 1-3/4" final, hacer un perpendicular
cortar, quitar la tira de 1/4" de la tubería.  Utilice papel de lija para suavizar los bordes.
Véase el PDF adjunto para más detalles.			













