Paso 2: Corte listas y dibujos













Listas y planes de y dibujos
Ver los archivos de "DFX" para perfiles de corte de piezas que se puede hacer.
Veo que bajan como un archivo de texto en algunos casos que deben guardarse como un archivo .dxf para usarla que supongo. Te consulto para una descarga más fácil manera de archivo.
He utilizado LibreCad que puede descargar gratis desde su sitio para windows y linux y funciona bien. Seguir unos tutoriales y manuales para empezar. Enseñó a dibujar haciendo este proyecto así que sus aficionado todo el trabajo. Si eres un buen dibujante y modificar mis dibujos le agradeceria una copia y las notas en los comentarios así puedo mejorar esto y yo mismo. Nota corte piezas ha sido alterado a polilíneas y capas sensibles para que unen para arriba.
Aquí están algunos enlaces
Descargar programa Librecad
http://LibreCAD.org/CMS/Home.html
LibrecadTutorials
http://Forum.LibreCAD.org/tutorials-manual-topics-...
http://www.mycadsite.com/tutorials/index.htm
http://www.cadforum.cz/catalog_en/?CAT=79&Page=2
También tengo mano dibujado algunos planes pueden cortarse con un cortador de plasma o conseguir a alguien para recortar con precisión.
Utilicé un cortador de plasma corte 40 poco de ebay que cuestan aproximadamente $280 para hacer el trabajo en acero de 10 mm gal y utiliza un molino de 110mm con una rueda de corte para el 6 mm material y general corte y pulido.
Taladré los agujeros con un taladro de banco $70 de Supercheap y el soldador fue un trabajo de palo $100 electrodo de Bunnings o KMart. Uno de estos trabajos combinados de Plasma MMA MIG sería vale la pena intentarlo.
Yo empujaba el cortador de plasma en acero de 10 mm y tuve que golpear la escoria con un golpe de martillo agudo pero limpian para arriba OK. Usé dos puntas y tenía que ir lenta y cuidadosa obtener el ángulo derecho. Lo bueno de la corte de 40 100 consejos y una nueva antorcha insertos y coste alrededor de 100 de ebay. Usted puede permitirse lío a precio y cortará todo lo que conduce la electricidad.
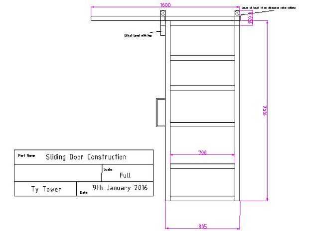
He adjuntado las exploraciones de mi papeleo inicial listas y dibujos en caso de ayudan pero hay errores en ellas (especialmente lista de corte).
Acero para estructura, puertas y balas de cabeza
Todo en 50 x 50 mm Duragal o galvanizado 2,0 mm o 2,5 mm u otro. He utilizado ambos y 2,5 mm estaba claramente más fácil de soldar y más fuerte pero más pesado en el resultado final. Su elección
4 2900 (rieles superior e inferior)
8 apagado 1850 (montantes, dibujos dicen 10 y estan mal)
2 de 1830 (puerta deslizante vertical)
14 de 1650 (anchuras de puertas laterales/squeeze)
1 de 1600 (corredor de la puerta deslizante)
1 de 1550 (extremo de la bisagra de puerta grande veterinario)
6 de 780 (extremos de bisagras de puertas laterales y puertas pequeñas veterinario)
10 700 (piezas de anchura y anchura de la puerta deslizante, puede ser cambiado fácilmente)
5 de 620 (Fill ins lado puerta y puertas de veterinario)
6 de 670 (tapas y fondos de veterinario puertas y puerta lateral pequeño)
Me costó $750 en 2,5 mm
Caja 50 x 50 mm- cabeza-fianza de corredores
2 800
Caja 40 x 40 mm
1 de 2200mm (para la cabeza-fianza palanca en la parte posterior)
Barra plana 50 x 6 mm-hojas de 100 mm que sobresalen extremos que pueden ser perforados para Dynabolts para concreto
4 900 (cambia si cambias de ancho). Si usted puede pagar ir a 10 mm hacerlo para más espacio de piso ayudar a decolorar.
1 800 (parte inferior de la cabeza-fianzas, cambio si cambias la anchura)
Conseguir algunos extras para ir a través de la puerta corredera en parte superior y corredores de fianzas cabeza etc.
Barra plana de 40 mm x 6 mm
2 de 1000mm (para respaldo suspensiones longitud-maneras)
1 de 1000 mm (para cortar en trozos de 100 mm en un ángulo)
Caja 75 x50mm x2.5mm-para el marco de cabeza-fianza
1 de 1900
1 de 2060
X2.5mm caja 65 x 35-el apoyo del mecanismo de cabeza-fianza
1 de 200
Cortar las piezas de 10 mm o 8 mm -ver dibujos listo cortar diseños. Además de algunas cosas para cortar y soldar con autógena en los fondos como se ha mencionado de la barra. Cortarlas yo mismo porque estoy todavía esperando en una cita de mi tipo de corte de agua 27 días después de pedir una cotización!
50 x 50 x 5 mm gal ángulo para tapas de pipa y parte inferior de la puerta deslizante de 1 metro
4 la 50 (para las tapas de tubo)
1 800 (para riel de guía inferior puerta corrediza)
75 x 75 x 6 mm ángulo de Gal para suspensión del mecanismo de rescate
1 de 250 mm.
25 x 25 x 2 mm acero Gal para puertas resisten
2 de 1770
2 1300
4 575
4 1250
Los extremos son con otras piezas cortadas (4 en 8 off) y están soldado arriba y abajo entonces atornilladas a los soportes de cabeza-libertad bajo fianza por lo que se mueven fuera de todo lo demás. Un poco de cadena con un trozo de tubo para bloqueo de peso en un cuadrado ranurado de acero en la otra puerta. He añadido una abajo la parte inferior demasiado como mi resisten puertas forman parte de la tolva hasta mi rampa.
Gal de la hoja 1, 5 mmpara interiores puertas de fondo
1 de 750 x 1060
1 de 670 x 930
1 de 660 x 650
2 500 x 1700
Me costo $250 en 1,5 mm
Gal tubo 75mm O/D (65 NB)
2 de 1700
Gal tubo 45mm plástico
4 de 1830
Gal tubo 32mm plástico
4 de 100 (para tubos de bisagra para sentarse)
2 de 100 (vaya ronda pins cabeza de balas)
14 de 140 (cerraduras de golpe)
Barra sólida 25 mm (Puede utilizar un pedazo de tubo con una varilla de relleno sólido también)
2 130 (para primeros alfileres de fianza)
7 off 340 (para cerraduras de golpe)
Resortespara caber dentro de tubo de 32 mm plástico
Consumibles
He utilizado 10 Kilos de barras de soldadura 2,5 mm y 36 discos de corte 115 mm corte todo el acero para 2 aplasta tan cerca de la mitad debe hacer 1. También corte el viejo con los.
Yo 66 o tan inoxidable mm 8 pernos y tuercas de dos tamaños (35mm (50 off) y 75mm (10)) porque no cuestan mucho más estos días y probablemente sólo tiene que abrir en vez de 10 a 20 años y que quieras ser reutilizable no es. Esta enamorado todo es reemplazable fácilmente y por separado bastante rápidamente en granja donde no tienen acceso a un soldador móvil. Sólo rip off, tiro en el trailer y llévelo a donde usted puede repararla.
Realmente fui los orificios de 10 mm y pernos en todo pero no veo mucha ventaja en esto y solo agrega a la dificultad de perforación y reduce la fuerza en algunas de las partes de la cabeza de la fianza.
Que utiliza pernos de 12mm x 70 mm para los puntos de pivote de las manijas de la fianza y fianza de cabeza sólo para estar seguro
En caso de he cometido errores, por favor, comprobar con los dibujos. Se unió a un poco de aquí y allá, pero debe tener ahora después de 2 de ellos. Todo esto se da libremente. Errores y omisiones son probablemente hasta obtener unas vistas de regeneración-950 y ninguno todavía.
Nota: trabajo en Dibujos del CAD de
Apriete el trinquete de puerta y accesorios-(ver fotos y escaneos)
Completo mecanismo de fianza-(ver fotos y análisis y un dibujo)
Cerraduras de golpe-(see scans)