DIY CNC Router (10 / 30 paso)

Paso 10: Marco de eje x

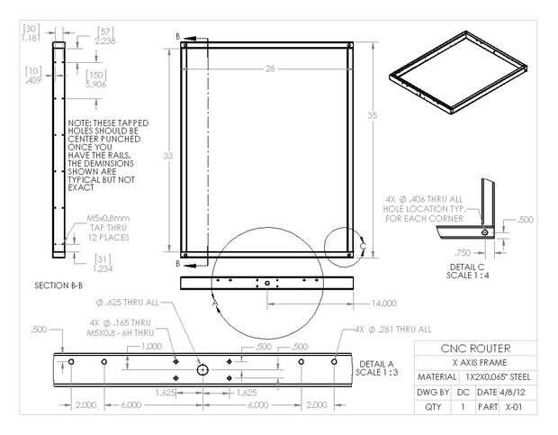
The x-axis frame is made from 1x2x0.065" steel tubing.  Los rieles son grabados para permitir el montaje de las guías lineales de 20mm.  Usted debe comprar los rieles lineales antes de empezar a hacer estas piezas.  Los rieles que me dieron tenían los agujeros de montaje taladrados pero parecía que alguien con un taladro de mano acabo de ir a la ciudad estos agujeros.  No se perforaron con mucha precisión por lo que se necesita transferir perforar todos los lugares para cada carril. Utilizar el dibujo como una referencia pero marque las ubicaciones de las piezas reales. El partido termina el patrón de agujero en el motor paso a paso placa de montaje tan sólo utilizar tu plantilla para transferir perforar esos lugares.  También se perforan cuatro agujeros de 3/8" en las esquinas para montar la máquina a la base de mdf.  La estructura fue soldada con autógena usando una abrazadera de ángulo recto de la herramienta norte.  Este fue mi primer tiempo de la soldadura con una pinza como este y yo estaba impresionado con su precisión y facilidad de uso.

Artículos Relacionados

Caseras X Y Z eje deslizante para DIY CNC Router fresadora

Caseras X Y Z eje deslizante para DIY CNC Router fresadora

Caseras X Y Z eje deslizante para DIY CNC Router fresadoCasero mini DIY X Y Z diapositiva CNC taladro Inicio construido torno Router fresadoraPerfecto para adaptarse a la parte más crítica de su proyecto de casa hecha o profesional CNC.Más bien proye
Caseras X Y Z eje corredera de aluminio para DIY impresora 3D CNC Router molino láser

Caseras X Y Z eje corredera de aluminio para DIY impresora 3D CNC Router molino láser

Caseras X Y Z eje deslice por aluminio para DIY impresora 3D CNC Router molino láserAl diseñar o construir un router CNC es importante considerar las fuerzas que son evolucionadas. Así, usted puede ajustar su diseño y verificar que satisfagan sus nec
Casero Mini fresadora Router molino diapositiva de ejes XYZ DIY CNC

Casero Mini fresadora Router molino diapositiva de ejes XYZ DIY CNC

Casero Mini Router molino diapositiva de ejes XYZ DIY CNC de fresadoMás hogar Homemade Mini amoladora correa bricolaje lijado rueda incorporada máquina de pulir aquí:eje lineal de 2 piezas 20 x 400 mm cilindro trazador de líneas del carril Linear del
Casero Mini Metal madera torno Collet ER11 DIY cabezal husillo portabrocas contrapunto CNC Router fresado

Casero Mini Metal madera torno Collet ER11 DIY cabezal husillo portabrocas contrapunto CNC Router fresado

Caseros madera Metal Mini torno Collet ER11 cabezal DIY husillo portabrocas contrapunto CNC Router fresadoMateriales:1 PC fuerza aleación de aluminio 42 mm soporte Motor de L ajuste de Motor DC1 pieza de aluminio 100 x 70 x 35 mm1 PC motor 50 vatios
Casero Mini Metal madera torno Collet ER11 DIY cabezal del husillo portabrocas contrapunto diapositiva CNC Router

Casero Mini Metal madera torno Collet ER11 DIY cabezal del husillo portabrocas contrapunto diapositiva CNC Router

Casa madera Metal Mini torno Collet ER11 DIY cabezal husillo portabrocas contrapunto diapositiva CNC Router1 PC alta resistencia aleación de aluminio 6061 42 mm soporte de Motor dc montaje Motor2 piezas SZS venta por mayor FL08 2 perno 8mm diámetro a
Sierra caladora de mesa Circular Mini casero DIY husillo contrapunta diapositiva CNC Router corte madera PCB aluminio

Sierra caladora de mesa Circular Mini casero DIY husillo contrapunta diapositiva CNC Router corte madera PCB aluminio

Sierra caladora de mesa Circular Mini casero DIY husillo contrapunta diapositiva CNC Router corte madera PCB aluminio1 pieza de aluminio 100 x 50 x 50 mm hacer agujeros 42 mm para motor1 pieza acero redondo especial tubos de 25 mm x 40 mm1 pieza acer
Sierra de calar de mesa Circular Mini casero DIY eje contrapunto diapositiva CNC Router PCB de corte de madera cabezal portabrocas

Sierra de calar de mesa Circular Mini casero DIY eje contrapunto diapositiva CNC Router PCB de corte de madera cabezal portabrocas

Sierra caladora de mesa Circular Mini casero DIY husillo contrapunta diapositiva CNC Router corte madera PCB cabezal portabrocas1 pieza de aluminio 100 x 50 x 50 mm hacer agujeros 42 mm para motor2 piezas SZS venta por mayor FL08 2 perno 8mm diámetro
Caseras X Y Z eje deslizante de aleación de aluminio para bricolaje láser impresora 3D CNC Router fresadora

Caseras X Y Z eje deslizante de aleación de aluminio para bricolaje láser impresora 3D CNC Router fresadora

Caseras X Y Z eje deslizante de aleación de aluminio para bricolaje láser impresora 3D CNC Router fresadoraMateriales:1 pieza de 57 mm motor de pasos de 1,8 grados1pcs 6,5 mm x 8 mm CNC Motor eje acoplador Flexible acoplador de la quijada4 PC SK20 SH
Bola de fuego V90 CNC Router Asamblea

Bola de fuego V90 CNC Router Asamblea

La bola de fuego V90 CNC Router es una máquina CNC que viene en forma de kit que requieren montaje. Actualmente el V90 de bola de fuego es una de las máquinas CNC más baratas en el mercado y es una gran manera de conseguir sus pies mojados con mecani
Hacer un puzzle de M.C. Escher reptil en su CNC router/molino

Hacer un puzzle de M.C. Escher reptil en su CNC router/molino

así, que apenas haya terminado su construcción CNC router/molino y necesitas algo para hacer.  Probar con el cuenco de la mano, que es muy fresco.Para su siguiente proyecto, probar con éste.  Siempre he tenido una predilección por las obras de Escher
Generación de GCode con Inkscape y MakerCAM [mi DIY CNC aventura PT. 3]

Generación de GCode con Inkscape y MakerCAM [mi DIY CNC aventura PT. 3]

sobre un método de grabado de un diseño en 2D con un CNC. Este es mi tercer video como aprender a usar mi Shapeoko 2 DIY CNC de Inventables.
Guía de DIY CNC seguridad

Guía de DIY CNC seguridad

he trabajado con RS componentes a resaltar algunas cosas a mirar hacia fuera para construir tu propia máquina CNC. Mayor parte es de sentido común pero siempre vale la pena discutir y mencionar las pautas de seguridad. Les presento a la guía de segur
Signos de madera personalizado hecho con Shopbot CNC Router

Signos de madera personalizado hecho con Shopbot CNC Router

mi amigo acaba de abrir una nueva tienda de juguetes. Estoy tan orgullosa de ella! Ella es simplemente impresionante y realmente muy bien con los niños y familias.Quería ayudarnos haciendo algunas muestras de su nueva tienda.Este proyecto fue creado
Talla X CNC Router polvo Collector/el zapato

Talla X CNC Router polvo Collector/el zapato

He comprado el actualizado 1000 mm x 1000 mm X-talle CNC. La actualización viene con motores más grandes y un router Dewalt 611. Cualquier persona que ha comprado uno de ellos rápidamente se dará cuenta que un sistema de colección de polvo es que un