Construcción de un marco de Trike Recumbent de bambú (3 / 23 paso)

Paso 3: Repensar y rediseñar

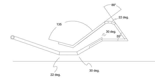
Mi objetivo de diseño principal era utilizar 3 postes de bambú como el marco principal y de interconexión para crear una "cercha".  Atar los tres postes largos juntos como una unidad minimiza la flexibilidad inherente del bambú creando una estructura rígida.  Diseño #2 es una variante de la popular expedición Catrike reclinada (foto 4).   http://www.catrike.com/catrike_expedition.html

Artículos Relacionados

Cómo construí una bicicleta de carbono marco en casa (y un bambú marco demasiado)

Cómo construí una bicicleta de carbono marco en casa (y un bambú marco demasiado)

he construido este marco compuesto de MTB de carbono método de construcción simple que se describe en este Instructable hace cuatro años. Por supuesto, este método no es adecuado para producción en masa, pero si planea construir sólo uno o dos fotogr
Timmy Green, mi construcción propia Delta Trike Recumbent.

Timmy Green, mi construcción propia Delta Trike Recumbent.

Este es mi verde y Lean VPH, (Human powered vehículo)Se hace de una combinación de piezas disponible en casa desde la silla de la computadora usada para bicicleta pequeño de un niño.El objetivo de este proyecto es promover la verde viven en Malasia p
Trike Recumbent sociable

Trike Recumbent sociable

El Two'Strike es un proyecto fresco, que construí un tiempo atrás. Este instructible es no realmente tanto un instructible ya que es una "galga ' para ver si hay suficiente interés para ir al gran esfuerzo necesario para producto un conjunto de calid
Araña gigante para Trike Recumbent su

Araña gigante para Trike Recumbent su

¿desea montar en su triciclo en el desfile de halloween? Vestir con una araña gigante y que todo el mundo envidia. Lo mejor de todo que sólo cuesta alrededor de $25 y las partes son reutilizables. A continuación, su único problema es decidir lo que v
Construyendo una bicicleta de bambú de fibra de carbono de cero

Construyendo una bicicleta de bambú de fibra de carbono de cero

No busque para un granja orgánico y gluten-libre modo de transporte. Bicicletas de bambú no sólo miran resplandecientes, pero también proporcionan absorción de la vibración del camino fantástico, una fuerza más alta al cociente de peso que el acero y
Recumbent Trike

Recumbent Trike

caseros recumbent trike - el proyecto tomó bastante tiempo para completar por lo que hay no hay fotos reales como las cosas se dieron cita, pero echa un vistazo - cualquier pregunta siente libre de mándenme una línea.Paso 1: Todo viene junto me encan
La construcción de un asiento reclinado.

La construcción de un asiento reclinado.

Este instructivo describe los pasos necesarios para construir un asiento trike recumbent madera barata de madera contrachapada de 1/8".  Podría utilizarse cualquier hoja fina de la madera pero encontré 3 capas abedul doblado muy bien.   He comprado l
Doble pantalla Digital foto marco & Family Center

Doble pantalla Digital foto marco & Family Center

en respuesta a exhortaciones de mis amigos, estoy haciendo este instructable.  Desgraciadamente, esto significa que no tienen ningún "making of" fotos, ni ningún reales precios de piezas usadas.Tengo un hogar para tech díscolo y estaba mirando m
Cómo construir un marco frío

Cómo construir un marco frío

incluso durante el invierno uno puede crecer hierbas y verdes sólo mediante el uso de un marco frío.Construir un marco frío es fácil!La siguiente es una breve explicación sobre cómo construir un marco frío y sobre cómo preparar la tierra para su jard
Robusta construcción de Quadcopter

Robusta construcción de Quadcopter

este es mi primer instructables que decidí publicar. Estaba obsesionado por estos increíbles máquinas voladoras durante un buen rato hasta que terminé viniendo a través de unos fantásticos cómo hacerlo guías en YouTube que me hizo realizar un Quad de
Marcos de tubo de cobre

Marcos de tubo de cobre

Siempre estoy mirando inusual trabajar en proyectos, y por un tiempo había estado pensando sobre las tuberías de cobre se puede obtener de la sección de plomería en la ferretería. Combinado con los codos de 90 grados y conectores "T", puede hace
Construir un marco de bicicleta

Construir un marco de bicicleta

hay un número creciente de materiales y métodos utilizados para la construcción de marcos de la bicicleta. Este instructable es específicamente sobre la construcción de marcos de bicicletas acero. MIG, TIG, tacos y filete de soldadura son todos los m
¿Cobre y marco de fotos madera reciclada

¿Cobre y marco de fotos madera reciclada

lo que compra tu hermana para su cumpleaños cuando ella ya tiene todo? Respuesta: nada. Hacer algo en su lugar.Este proyecto comenzó mirando bastante diferente del producto final, como yo seguí cambiando y agregando algunos detalles como que avanzaba