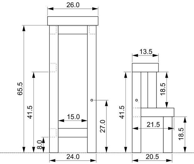
Paso 8: dimensiones de versión 2


Aquí usted puede extraer cualquier información que usted necesita para construir esta versión del Banco de escalera.
Repito la nota ya que se podría pensar que faltan algunas medidas: todos los tableros de madera son 4,5 cm de espesor, y todas las vigas tienen sección de 3.5 x 4.5 cm, eliminado con más inercia en la dirección del lado más corto de la banca, así que para ahorrar más espacio para las medidas interiores.