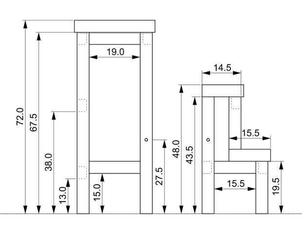
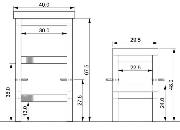
Paso 11: esquemas de versión 3



Y aquí los esquemas para esta versión más grande. Otra vez la madera tableros son 4,5 cm de grosor y las vigas con sección de 3.5 x 4.5 cm.
Les escribiré pronto el instructable sobre el proceso de construcción, pero espero que alguien de ustedes los lectores puede construir antes, y estoy seguro de que todos estamos deseando ver tus obras.