Taburete plegable-paso [actualizado] (13 / 15 paso)

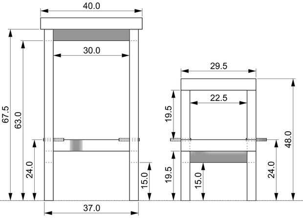
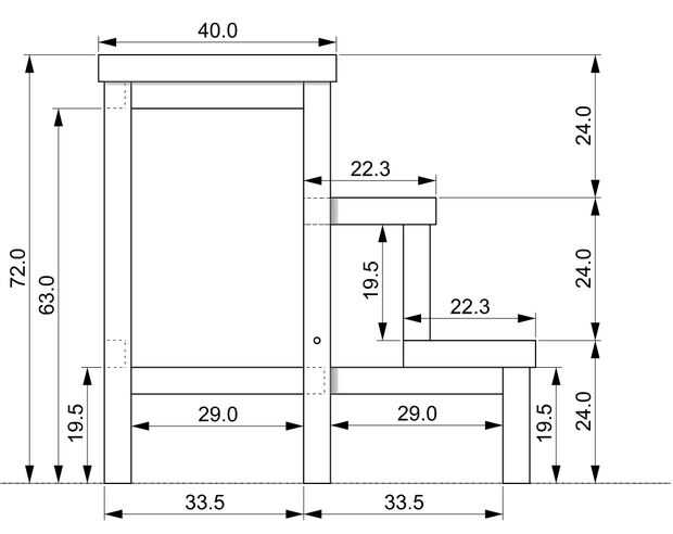
Paso 13: dimensiones de diseño 4

Por fin los esquemas cuadrados más grande Banco.

Agregar ocho patas de goma debajo de este último banco-escalera, o se consigue pulsado en el movimiento contra el piso.

Buena suerte si te animas a construirlo!

Artículos Relacionados

Realización de taburete de paso plegable

Realización de taburete de paso plegable

después de publicar el proyecto para los diferentes tipos de pasos de taburete plegables, era capaz de hacer un juego de 4. Esta vez que tuve que adaptar las dimensiones de las barras de madera ya tenía.Paso 1: material Lijar y cortar barras de mader
Taburete plegable portátil

Taburete plegable portátil

Quería un pequeño taburete a llevar en mi coche para que pudiera utilizarlo cada vez que puedo tengo que dejar en mi viaje por la carretera, y esta es la solución.Aquí he convertido un stand de Mike en un taburete plegable Portable, para que pueda se
Asamblea de paquete plano de IKEA Bekvam taburete de paso

Asamblea de paquete plano de IKEA Bekvam taburete de paso

He pensado publicar este primer instructivo para un rato. puesto que se trata de uno de los más lindo y plano más popular paquetes del concepto de montaje de Ikea tiene para ofrecer.La unidad detaburete Bekvames entre las unidades de RTA más bien con
Taburete de paso estrecho espiral transformables de madera

Taburete de paso estrecho espiral transformables de madera

Esto fue creado para un propósito específico. Necesitaba un taburete de paso estrecho para nuestro cuarto de baño. También tuvo que ser a prueba de tres años.Paso 1: hacer las piernas Quería que esto sea simple pero con un toque. hacer las patas redo
Taburete de paso simple para un niño

Taburete de paso simple para un niño

esto es un taburete de paso muy simple que puede ser utilizado para un niño (o un adulto, así como es muy fuerte).Hice este taburete de una sola pieza de madera de 1 "x 5" reclamado y 12 tornillos para madera.Puede utilizar una pieza de 1 "
Reclamado los taburetes de paso

Reclamado los taburetes de paso

Estos taburetes de paso que hice un rato detrás de un montón de chatarra que había sobrado de un proyecto de estantería. Era la misma pila de chatarra que hice la caja de vidrios del grano final de y cuentan con los tableros del shiplap mismo en ello
DIY niños seta tabla y taburetes de sapo actualizado

DIY niños seta tabla y taburetes de sapo actualizado

un tiempo atrás me divertí oportunidad de construir un niño tamaño set seta y banquetas de sapo para uno de mis clientes.  Había encontrado algo similar en línea pero no era cierto, tipo de cara y todavía tenía que enviarlo.  Esta es mi opinión sobre
'yoyo' aka colgante de cuchillo plegable 'pajarito' (actualizado)

'yoyo' aka colgante de cuchillo plegable 'pajarito' (actualizado)

Siempre he querido diseñar un colgante útil.No sólo un colgante.Y no sólo una herramienta.Pero una herramienta, con tan buena parece que no tiene nada tool-ish.Bueno, hice un DARC y soy el autor orgulloso de la avispa. Àre bastante buena mirando, gra
Taburete de paso a paso

Taburete de paso a paso

mi suegra anunció que ella no puede alcanzar la parte superior de los armarios en la cocina. En la casa ha vivido cuarenta años. Preguntó si podía hacer algo para ayudar. "No hay prisa," ella dijo. Ella ha esperado esto mucho...Así que aquí está
Organizador de escritorio plegable paso 1

Organizador de escritorio plegable paso 1

Comience conectando las correderas telescópicas juntos por medio de tornillos y tuercas.Paso 1: Paso 2: conectar la BaseColocar una base en la parte inferior de la diapositiva telescópica vertical.Paso 2: Paso 3: las bandejas del pegamento del gorila
Carpintería magnético plano-embale taburete

Carpintería magnético plano-embale taburete

Aquí está mi opinión sobre el taburete de paso plegable. En primer lugar, soy nuevo en el diseño de paquete plano. Tan nuevo que sólo comencé a comprobar hacia fuera cuando salió el concurso. Me empezó a buscar en él y pensé "¿cómo echo de menos esto
Escalera plegable de madera-cama

Escalera plegable de madera-cama

Tras el paso de taburete plegable y la tabla de la escalera, tenía una solicitud de diseño... no creas, una escalera plegable de madera para una cama del desván!Para un proyecto como este una maqueta impresa 3D es muy útil, por lo que le sugiero que
Kayak paso carro

Kayak paso carro

una alternativa a la cesta de PVC DIY - fácil de hacer, dobla como un paso para cargar y descargar y dobleces para el transporte conveniente / almacenamiento de información.  No consigue mucho más fácil que esto.Paso 1: Plegable taburete de paso Nece
Reciclado de taburetes de pata de silla

Reciclado de taburetes de pata de silla

Creo que viejo patas son preciosas y he ido recopilando para hacer taburetes.He encontrado una manera para conectar las patas al asiento que es;fuertebaratosimpleMe tomó un tiempo porque tenía un montón de fallos, pero ahora estoy contento con el dis