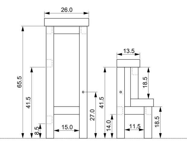
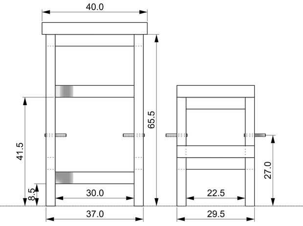
Paso 4: dimensiones de versión 1


Aquí puedes encontrar todas las dimensiones necesarias para construir la escalera. Al diseñar las conexiones entre vigas, tableros y patas de madera consideran para determinar la longitud de los elementos. Por ejemplo, si desea utilizar pernos de madera, ya tienen dimensión correcta en mis esquemas, pero si usted quiere hacer juntas, tienes que añadir la longitud de las juntas a la longitud del elemento.
Una nota sobre las dimensiones, todos los tableros de madera son 4,5 cm de espesor y todas las vigas tienen sección de 3.5 x 4.5 cm, eliminado con más inercia en la dirección del lado más corto de la banca, así que para ahorrar más espacio para las medidas interiores.