Paso 5: Agrega el cierre de la rampa

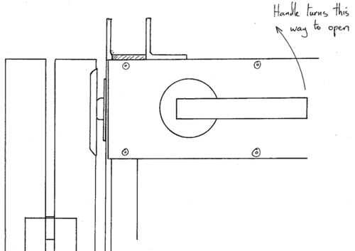
Nota: Para detener el pestillo de cierre y luego continuando horizontal, necesita tomar una pieza de metal y soldadura al marco principal debajo de donde está el pestillo. Si esto es confuso, puede omitir este paso por el momento, llegará a ser evidente durante la prueba de cierre y mis instrucciones pronto hará más sentido.