Paso 2: Construir el marco principal






b) soldar bisagras entre las dos partes largas, 150 mm de cada extremo. Recuerde dejar un espacio de 4mm entre las longitudes (ver imagen 2)
c) sección de caja menor (320 mm) de soldadura en ángulo recto por debajo de las longitudes con bisagras (utilizando los pequeños pedazos de hierro de ángulo como soportes de refuerzo). Por favor no suelde a ambas secciones largas, sólo el que se muestra en la imagen 3 con los soportes colocados.
Después de la soldadura, la longitud en la parte posterior aún pueda hacer pivotar hacia arriba en las bisagras.
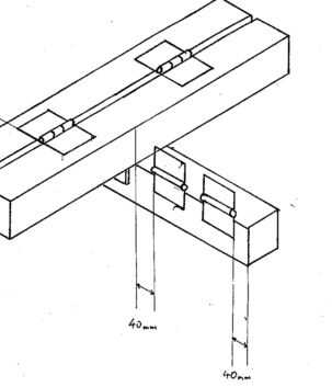
d) soldar las bisagras a la longitud más corta (que sobresale). Las bisagras deben estar por lo menos 40mm de los bordes internos y externos (ver imagen 4). Finalmente luego de rampa se fije en esto.
e) soldadura vertical marco junto (150 mm, 215 mm y 125 mm caja sección longitudes). Dos notas importantes ver (imagen 5):
• debe existir un agujero hacia arriba en un lado. Un polo se inserte esto más adelante por lo que necesitarás mantenerlo libre de manchas, la soldadura y
• que se soldadura más cosas en la parte posterior de este marco en el paso 2-f. Sugiero añadir unas soldaduras para celebrar juntos, completar la construcción de 2-f, luego soldar todas las uniones.
f) soldadura de las dos secciones de 100 mm en la parte posterior del bastidor, véase la imagen 6. Es importante conseguir tan paralelo como sea posible porque puestos conectados a la placa de montaje se deslizarán dentro de estas secciones.