Paso 3: La rampa



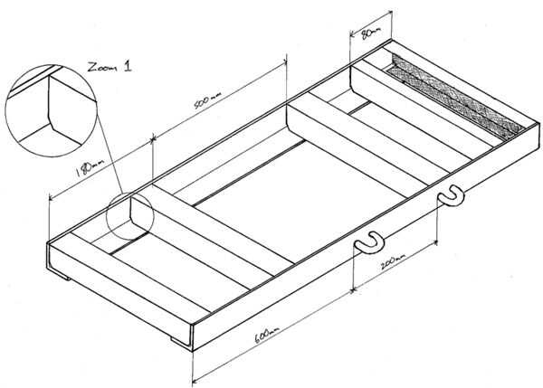
b) las secciones de caja de 3 x 300 m m en una formación de escalera a las longitudes de hierro ángulo de 2 x 1000 mm de soldadura. También soldar las longitudes de sección media-caja de 2 x 300mm y 2 x media-eslabones. Ver imagen 8 para las mediciones.
Importante: Asegúrese de que las longitudes de 300mm en ángulo recto a las longitudes largas (de lo contrario la rampa puede falta el marco principal). También, para colocar las barras correctamente, puede que necesite recortar el borde inferior de los extremos (ver zoom en la imagen 8).
c) Instale el marco principal a la rampa por la soldadura de las bisagras a la sección de caja media 300 m m (el extremo derecho del bastidor principal debe alinearse con el extremo de la rampa). Ver imagen 9
d) soldadura soporte de rueda delantera de la barra (sección caja de 300 mm y sección de caja de 2 x 60 mm, soldadas en forma de U) en lugar de 150 mm desde la parte derecha de la rampa según imagen 9.