Paso 6:

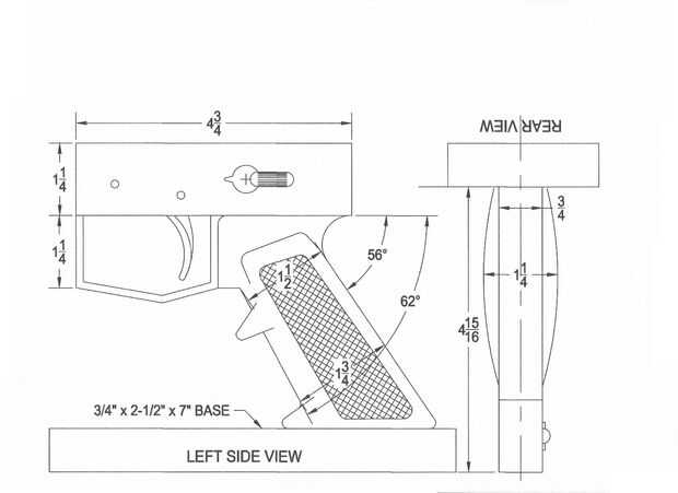
He incluido una imagen y lo que espero es un archivo pdf descargable del dibujo. Yo lo llamo mi "manija ergonómica", que, por supuesto, tendría que ser pintado de negro. Con esto, usted puede hacer su propio Asalto plantillas! Cuando llego a lo que es, yo tome muchas fotos y hacer otro Instructable para aquél. Hasta entonces, los mangos y guardar los dedos.