Flexcopter (6 / 30 paso)

Paso 6: Referencia de la cota

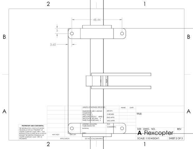
Utilizar estos dibujos como las dimensiones para crear las piezas en los siguientes pasos. Las unidades están en milímetros.

Artículos Relacionados