Diseño y construcción de un modelo de arquitectos (3 / 10 paso)

Paso 3: Diseño aceptado, dibuja para arriba!

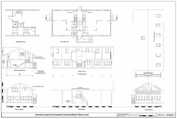
Completamente detallada arangements general producido listo para construir el modelo.
Un modelo rápido de cartón se hizo a escala de 1-40 para ver si sería un tamaño adecuado.

Artículos Relacionados

Diseño y construcción bonito avión RC

Diseño y construcción bonito avión RC

Hola a todos este es mi Instructable primera pero estoy emocionado y deseoso de compartir con toda la gran gente de aquí cómo diseñar y construir un avión a control remoto. La aviación ha sido una pasión de toda mi vida y me ha llevado a obtener mi t
Construcción de yates modelo

Construcción de yates modelo

modelo yacht es un pasatiempo maravilloso para los navegantes que gustan delos muchos diversos diseños disponibles para yates de gran escala que pueden realizarse por varias técnicas. Comencé a tallar modelos de mis ideas de barcos a la tierna edad d
Serie mecánica celeste: caja de cambios diseño y construcción

Serie mecánica celeste: caja de cambios diseño y construcción

Mecánica celeste es una 16-pies altura cinética escultura de acero de nuestro sistema solar que representa la majestuosa danza de los astros. Fue creado por un equipo dirigido por Jessika Welz para 2014 de hombre ardiente.(Página de facebook: https:/
QuadCopter Drone diseño y construcción de

QuadCopter Drone diseño y construcción de

Drones están en todas partes estos días, solo toma un vistazo cada ahora y entonces darse cuenta de lo popular que están recibiendo. Usted puede han estado pensando consiguiendo un drone pero despidiendo por el precio. Generalmente tienes que pagar m
Diseño y construcción de una canoa de vela de estabilizadores de luz, capaz de auto-top [actualización en marzo de 2016]

Diseño y construcción de una canoa de vela de estabilizadores de luz, capaz de auto-top [actualización en marzo de 2016]

[ACTUALIZADO A MARZO DE 2016, VER ÚLTIMO PASO--WT](Comentario sobre las fotos: corta el dragón es un buen barco, pero comenzó algo pesado y engordado como he añadido nuevas características como compartimentos estancos. Él ha experimentado muchas revi
Construcción de un modelo a escala 1: 160 (N) de un puente de ferrocarril del braguero

Construcción de un modelo a escala 1: 160 (N) de un puente de ferrocarril del braguero

Este es un instructivo para la construcción de un puente de ferrocarril del braguero (de mi propio diseño) en escala N o (1: 160). Los archivos de modelo 3D pueden encontrarse en Thingiverse. Cabe señalar que este puente fue diseñado para demostrar l
Construcción de un modelo a escala 1: 160 (N) de un puente de ferrocarril de viga

Construcción de un modelo a escala 1: 160 (N) de un puente de ferrocarril de viga

Este es un instructivo para la construcción de un puente de ferrocarril de la viga (en gran parte de mi propio diseño) en escala N o (1: 160). Los archivos de modelo 3D pueden encontrarse en Thingiverse. Este puente se pretende realmente ser parte de
Construcción de un modelo a escala 1: 160 (N) de un puente de ferrocarril de viga placa

Construcción de un modelo a escala 1: 160 (N) de un puente de ferrocarril de viga placa

Este es un instructivo para la construcción de un puente de ferrocarril de la viga placa en escala N o (1: 160). Los archivos de modelo 3D pueden ser en Thingiverse.Paso 1: Imprimir las piezasLas piezas para este modelo se pueden imprimir con cualqui
Diseño y construcción de pasos para un cobertizo prefabricado

Diseño y construcción de pasos para un cobertizo prefabricado

durante una reciente mudanza, tomaron mi casa prefabricada acero arrojar y trajo a la casa nueva. En nuestro antiguo lugar, la plataforma de en que la nave fue construida era endeble y se coloca directamente sobre el terreno. Aquí, quería algo más ro
Diseño y construcción de un sintetizador Meeblip y Arduino, añadido vídeos!

Diseño y construcción de un sintetizador Meeblip y Arduino, añadido vídeos!

Para mi pasantía en Crear música Digital/Meeblip he creado una diversión poco sintetizador. Esta cosa está destinada a ser más flexible que otros sintetizadores, haciéndolo totalmente independiente; es con pilas, tiene su propio amplificador/altavoz
Juego-opoly: Diseño y construcción su propio juego de mesa

Juego-opoly: Diseño y construcción su propio juego de mesa

juego-opoly es el proyecto de diseño final. Idear tu propio juego sin duda no es ciencia espacial, pero es más difícil de lo que piensas. ¿Cuál es el truco? El juego tiene que ser divertido para jugar.Todos hemos tenido la experiencia de jugar un jue
Diseño y construcción de un sintetizador 'acústico'

Diseño y construcción de un sintetizador 'acústico'

para mi pasantía en Crear música Digital/Meeblip he creado una diversión poco sintetizador. Esta cosa está destinada a ser más flexible que otros sintetizadores, haciéndolo totalmente independiente; es con pilas, tiene su propio amplificador/altavoz
Construcción de un modelo de cohete - Introducción

Construcción de un modelo de cohete - Introducción

construcción de un cohete modelo es un divertido pasatiempo, pero puede ser fácil para alguien nuevo en el hobby de cometer un error.  Esta guía pretende ayudar a aquellos que son nuevos en el hobby completado todos los pasos requieren para construir
Diseños de construcción del puente

Diseños de construcción del puente

en nuestra comunidad que querían construir un nuevo puente, así que queríamos comprobar si el diseño que tenían en mente era el más fuerte. En primer lugar hemos diseñado 2 diferentes puentes, un puente del braguero y un puente colgante (que tenían e