Paso 2: Vender el diseño para descanso del personal






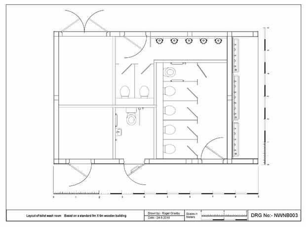
- Primera foto muestra lo que parece un garaje... mal! detrás del garaje puerta es una instalación de lavado de manos a velocidad a través de los niños zurdos sucios antes de que coman comida :)
- En segundo lugar, muestra la disposición interna.
- Para obtener el siguiente bit derecha volé unos globos, uno en cada esquina y en la cresta termina donde los 2 edificio estaría parado.
- Cuadro 4 muestra el edificio en su lugar.
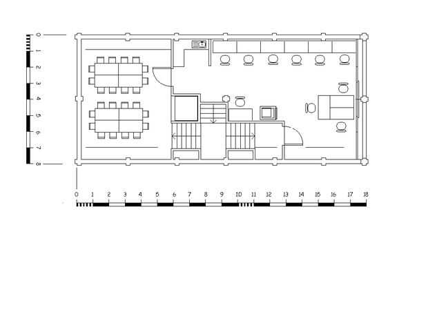
- Últimas fotos muestran la disposición interna de los dos pisos.




![Diseño y construcción de una canoa de vela de estabilizadores de luz, capaz de auto-top [actualización en marzo de 2016] Diseño y construcción de una canoa de vela de estabilizadores de luz, capaz de auto-top [actualización en marzo de 2016]](https://foto.askix.com/thumb/170x110/c/3e/c3ef48e18c2c32a5b147a0240421ce3b.jpg)








