Paso 2: Haga el caso









Hice un caso 11cm de ancho por 15cm de alto y 15cm de profundidad, que es apenas lo suficientemente grande como para contener la fuente de alimentación con una capacidad de aire para circular y para hacer las conexiones del panel frontal. En retrospectiva probablemente debería ser un poco más para permitir que los cables y extra PCB.
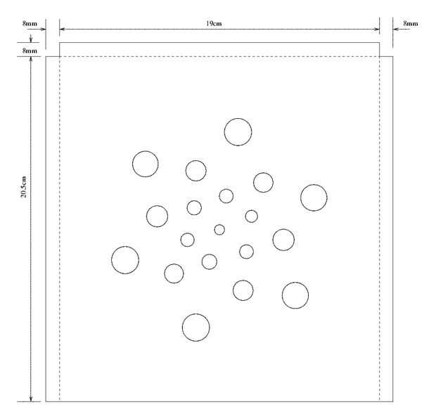
Lados. Estos miden 19 x 20,5 cm. Cortar una vieja carcasa de microondas que había desmontado para otra cosa. Permite 8 brida de mm en el frente, parte superior y bordes posteriores, por lo que cada pieza mide 16,6 x 15,8 cm
Doblado los bordes por la sujeción de las piezas entre dos piezas de acero del tormento y golpear los bordes con un martillo. Puede doblar los bordes de sujeción en un vicio, o incluso los dobla con unos alicates, pero haz un poco de un borde ondulado con esos métodos.
Hice la parte superior de algunos acero más grueso de una vieja caja de la PC, ya con un bonito acabado en negro. Sólo está doblada en la parte delantera y trasera. La curva en la parte delantera es parte de la forma original.
La pieza posterior es otra pieza de acero fino. Medir tu fuente de alimentación para saber exactamente a dónde hacer los agujeros, pero permiten un poco de "sala de meneo". Guíese por el dibujo de www.formfactors.org básica y modificarla para adaptarse a la oferta que tiene.
Todo esto simplemente resbala sobre la base de aglomerado y se sujeta con tornillos.
Cortar un trozo de madera donde atornillar el panel frontal los tornillos de montaje y montar el socket del LED, interruptor y USB. Pegar esto en la parte superior delantera de la caja.
Orificios de ventilación.
Buscar el centro de cada lado y marcar con un granete. Dibujar círculos concéntricos con una brújula. El tamaño de cada círculo es juzgado por el ojo para conseguir un aspecto más "natural" separación. Los agujeros están espaciados hacia fuera con 6 por círculo. Cuando hayas dibujado cada círculo, marcar un punto en en cualquier lugar y utilice el compás para dividir en 6. En caso de que no sabes cómo hacerlo, coloque el punto de la brújula en el inicio de su lugar y usarlo para hacer una marca a cada lado. Coloque el punto de la brújula en cada marca que hecho y hace 2 marcas más. Coloque la punta del compás en cada uno de ellos, y esperemos que la marca pasado será en el mismo lugar. Cuando lo haya hecho en dos piezas laterales, configurar la brújula para el tamaño de su próximo y hacer otro. Otra vez, escoge cualquier punto al azar alrededor del círculo para su comienzo para conseguir un aspecto más natural.
Taladrar los agujeros, usando un cortador de paso porque hace bonitos agujeros redondos (y grandes), pero puedes usar sólo aumentar tamaños de broca, sin embargo esperan que los agujeros para ser ligeramente triangular en este caso. Perfore orificios piloto de pequeña para el tamaño más grande no pasear.
Panel frontal.
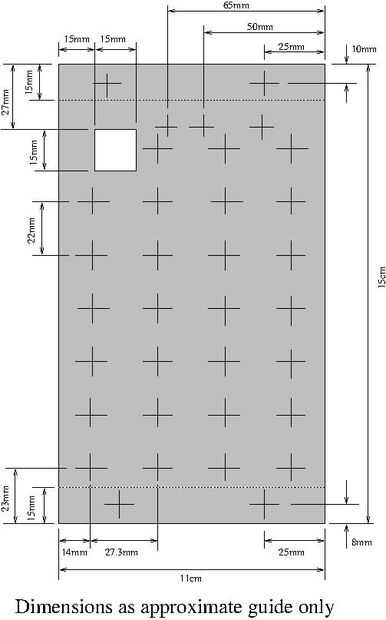
Tuve algunos metacrilato rojo de una pieza de la vieja muestra de la tienda que encontré, así que corte una pieza de eso. Puede utilizar cualquier material que puede montar los bornes en él. Cuando marcando la parte frontal tienes que tener en cuenta que las tuercas de montaje de la fila inferior de terminales deben borrar el base de conglomerado. Las tuercas de los terminales en los costados deben borrar las pestañas de los paneles laterales. Debe haber espacio en la parte superior para el interruptor y LED, y la pieza de madera se montan sobre.
Si usas diferentes dimensiones que en el dibujo, necesita decidir cuántos terminales cómodamente caben en el ancho tienen disponibles, divídalo por el número de terminales. Es el espaciamiento entre ellos. Dividir esta cantidad por 2 para obtener la distancia de cada borde. Quizás tenga que modificar esto un poco para que todo se ajuste. Ajuste la altura, determinar donde deben caber las filas superior e inferior, entonces divide el espacio entre ellos, otra vez decidir cuantas terminales se forma y dividir el espacio en consecuencia. Uno o más de los terminales se sustituirá por una perilla de control, por lo que debe asegurarse que hay suficiente espacio en esta posición.
Si me estaba haciendo esto otra vez habría corte una sección del filete de madera en la parte superior para levantar la toma USB.













