Paso 6: El mango






En primer lugar tenemos que cortar un trozo de metal en la forma correcta. Así que es un círculo con un diámetro de 100 mm y el espesor es de 2 mm.
Hay 3 protuberancias que están colocados a 120 º unos de otros. Estas 3 protuberancias será doblados. Ahora usted puede conectar al tubo.
Las otras 2 partes que se utilizan se harán de madera meranti.
- La parte cilíndrica es posible por el torno. Si la forma es correcta puede fregar y lo barniz.
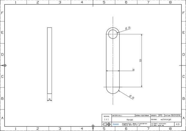
- La otra parte tiene un espesor de 10 mm. hay un agujero en él donde puede poner la forma cilíndrica a través. El diámetro es 20 mm.
- Para estas 2 partes utilizamos pegamento de madera para conectar.
Ahora damos la chapa a las piezas de madera utilizando Tec7.
El mango hace clic en el tubo. Así que usted puede cambiar el tubo (canción) pero sólo utiliza 1 manija.