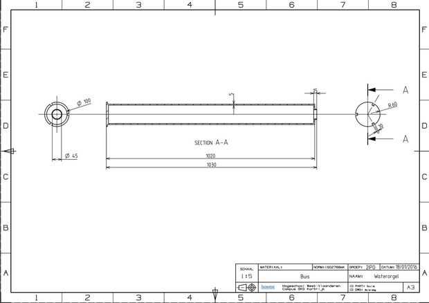
Paso 5: El tubo

El tubo está hecho de trasparant PVC. Tiene una longitud de 1000 mm y un diámetro de 100 mm a cada lado del tubo poner una placa redonda. Atribuimos estos al tubo con la pistola encoladora.
Una de estas placas tiene un agujero en él. Este agujero es para la manguera de agua.
El otro tiene un diámetro de 120 mm y hay huecos en él. Estos huecos sirven para sujetar el mango.
En el tubo se perfore agujeros de 2 mm de diámetro. Tienes que hacer esto con un buen patrón. Las posiciones de los orificios son importantes para el tipo de canción que vas a jugar. (hay un límite para el tipo de canción por supuesto)