The Bicycle Shower (5 / 10 paso)

Paso 5: 1. La bicicleta: Asamblea

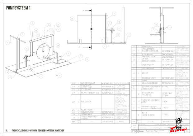
Usted está casi allí.

  • Coloque el lado izquierdo (donde la cadena pasa a través) y la upperplate en la base.
  • Fijar la base en la placa inferior.
  • Uso el taladro y bastante pegamento!!
  • Coloque la bomba en el agujero de la rueda y otra vez: pegamento en perforar este juntos.
  • Coloque la palanca en la placa inferior
  • Poner el asiento y el volante a través de los agujeros.

Ahora vamos a añadir algunos fuerza colocando soportes a cada lado para evitar la bicicleta se mecen!

Artículos Relacionados

Sweetums from "The Muppet Show"

Sweetums from "The Muppet Show"

Me gustaría que había tomado fotos del proceso de fabricación de este traje.  No era un traje muy difícil de hacer, sólo tomó un montón de paciencia y un montón de hilo.Materiales necesarios:-partidas de hilado (8 rollos)-pistola y pegamento barras d
Cómo dibujar Cleveland Brown, Jr. De The Cleveland Show

Cómo dibujar Cleveland Brown, Jr. De The Cleveland Show

aprender a dibujar Cleveland Brown, Jr. en menos de 10 minutos!El Cleveland Brown Mostrar:http://www.Fox.com/ClevelandKevin Michael Richardson - artista de la voz:http://www.imdb.com/name/nm0724656Información para el alma creativo:Dibujo de Software
Cómo dibujar Cleveland Brown del Show de Cleveland y padre de familia

Cómo dibujar Cleveland Brown del Show de Cleveland y padre de familia

aquí está un rápido tutorial sobre cómo dibujar Cleveland Brown de The Cleveland Show creado por Seth MacFarlane, Mike Henry y Richard Appel.Yo uso computadoras PC & Mac para crear obras de arte pero no necesita una computadora o software de lujo par
Chaqueta de LED de secretos de la luna

Chaqueta de LED de secretos de la luna

¿Llevas a la luna? ¿Sabe usted ¿qué secretos tiene? Me invitaron a construir una chaqueta uniforme LED espacio para Buzz Aldrin para usar en un segmento en el Late Show con Stephen Colbert. Es un bastante simple NeoPixel y proyecto de lentejuelas de
Película una sátira

Película una sátira

el objetivo de este proyecto es dar a los alumnos una mayor comprensión de qué sátira es y cómo funciona. Este objetivo se logra por tener la escritura de los estudiantes y la película una historia satírica en la vena de The Daily Show, The Colbert R
Hacer los fideos Keurig Ramen

Hacer los fideos Keurig Ramen

Todo el mundo sabe acerca de los fideos Ramen, que nadie va a la Universidad en Ramen y casi todo el mundo sabe cómo hacer los fideos Ramen en el microondas. Pero ver quemadura de fideos Ramen y encontrarás cientos de artículos sobre fideos Ramen y t
R/C LEGO "Coaster" Droid

R/C LEGO "Coaster" Droid

el Droid de montaña o "CDroid" es una versión más grande de LEGO RC 'Velocípedo' droide que construí recientemente. Y este uno quiero añadirle el sensor por lo que podría evitar golpear los obstáculos.El "CDroid" utiliza componentes LE
R/C LEGO 'Velocípedo' droide

R/C LEGO 'Velocípedo' droide

construí este Droid 'Velocípedo' mediante el uso de piezas de conjunto existente de LEGO® - "Guerra de estrellas 7748, el clon Wars Corp Alianza Tanque droide" (2009) y algunos otros ladrillos de LEGO Technic, placas.El conjunto original de 7748
Inalámbrico de LEGO Race Car Redux

Inalámbrico de LEGO Race Car Redux

el coche de carreras de Lego Wireless original fue construido con el hackeado motor y caja de engranajes con ejes que llevó a cabo de R/C coche de juguete y modificado placas de LEGO para ser utilizado como un soporte de servo.Posteriormente diseñé n
R/C LEGO® Dart Shooter droide

R/C LEGO® Dart Shooter droide

juguete implica interacción! Pero cuando construyo LEGO® pista Bot careció de cualquier interacción. En la época que construyó el Bot de pista de LEGO no estaba pensando en la parte de la interacción de la misma en todos. Así que decidí construir otr
Eminem en guitarra fácil

Eminem en guitarra fácil

todo el mundo sabe Eminem. Un hombre con un pasado áspero que trabajó su manera hasta un rapero famoso del mundo, y que ahora es parte de un nuevo dúo de rap, Bad Meets Evil. Este instructable muestra cómo jugar algunas de sus canciones fáciles en la
Mi propio Cryptex

Mi propio Cryptex

en este instructable estoy mostrando las fotos de mi propio cryptex... He seguido los pasos de "Cómo hacer un Cryptex" desde este enlace: hecho por merijnvw.Aqui solo pongo esto para que puedan ver que usted puede cambiar cualquier instructivo a
Eje de la manija del torno para una Myford ML10

Eje de la manija del torno para una Myford ML10

un torno huso manejar es un controlador avanzado que permite la tirada del torno dar vuelta a mano. Se deslizó en el final hueco del husillo y sujeta en su lugar girando una perilla central.Es particularmente útil cuando hilos de corte en un torno co
Biblioteca de C para controlador de pantalla LCD HD44780

Biblioteca de C para controlador de pantalla LCD HD44780

Hola a todos,He empecé a trabajar con micro controladores de Texas Instruments MSP430 valor línea. Todavía disfruto trabajando con Ardunio pero puedo recoger un 16 bit TI MSP-EXp430G2 por $9.95.Texas Instruments es una empresa grande y realmente ha a