Paso 6: La bomba





http://www.pumpbiz.com/ US$ 80
http://www.ba-industrial.com
http://www.hartleige.com/Rotary-Plastic.htm (REINO UNIDO)
http://www.bergerclosures.com/ (no aparece el precio)
www.Tonson-motor.com (fabricante de Taiwán) llamado HC25P en su catálogo actual
El único problema que tuvimos con este modelo era la tuerca de la manija, que no fue diseñada para el desenfreno de los niños y cuidada para sí mismo durante el juego. Hemos reemplazado con una tuerca en cada lado del brazo (wwe tuvo que reemplazar el perno con una poco más para ajustar la tuerca extra) y no han tenido ningún problema desde.
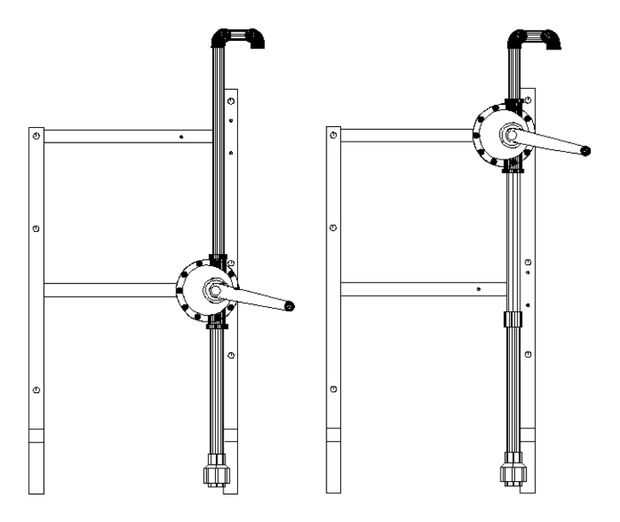
Quite los seis pernos de la carcasa de la bomba (tres delanteros y tres detrás) como se muestra. Los pernos restantes son perfectamente adecuados para mantener la bomba hermética y quitando estos tornillos proporciona tres puntos de fijación ideal para sujetar la bomba a la estructura.
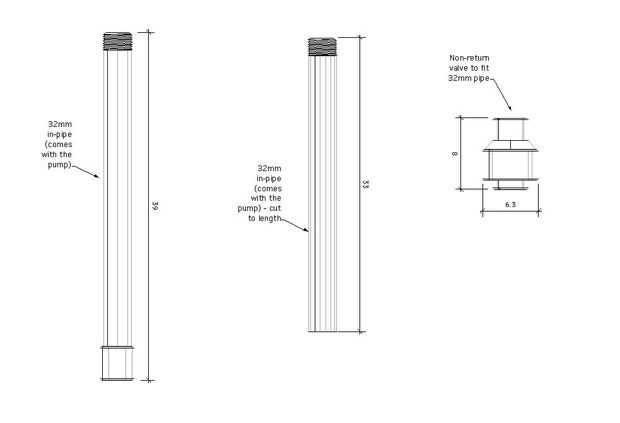
La bomba viene con tres secciones de tubo de aspiración de 32mm y una rejilla que tornillos en la parte inferior de esta tubería. También necesita pero una válvula de no retorno o "clack" a colocar en la parte inferior de la entrada. Estas vienen en muchas formas y tamaños y evitarán que el agua de drenaje de la bomba durante las pausas en el juego. Mantener llena la bomba (cebada) lo que lo hará inmediatamente bomba de agua otra vez cuando la manija se da vuelta y no requiere los niños bomba como mad levantarse agua en el cuerpo de la bomba. Algunas válvulas utilizan un resorte para mantener el agua de regreso por la tubería y otros utilizan la gravedad y el peso del agua sí mismo. Se encontró que el tipo de muelle podría hacer bombear más duro para los niños más pequeños, pero quitar el resorte solucionó este problema y la válvula hizo perfectamente bien con la gravedad justa para sellarlo. Si tienes suerte tu ferretería local de centro de jardín tendrá uno con una rosca de tornillo que encaja en la parte inferior de la tubería de aspiración de bombas. Tuvimos que recurrir a la cinta del conducto para nuestros pero todavía funciona bien. Coloque la rejilla en la parte inferior de la válvula si no vienen con uno de los suyos y cortar los tubos de ajuste. Las dimensiones de fotograma se muestra se han calculado la longitud de las tuberías de entrada de este modelo con el mínimo despilfarro para las posiciones de superior e inferior de la bomba.
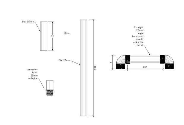
Utilice el tubo de PVC de 25mm y accesorios para la tubería de salida y 180 grados de la curva en la parte superior para tirar agua en la tolva superior.