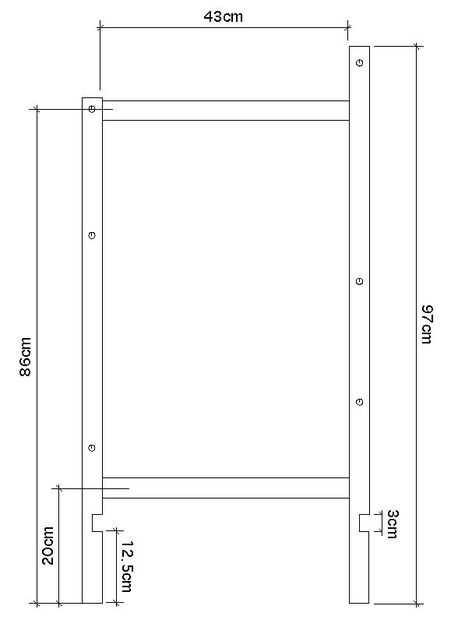
Paso 5: El marco





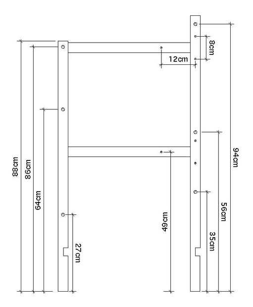
El esquema adjunto muestra las dimensiones que hemos utilizado. El ángulo de las rampas es de aproximadamente 10 grados y hemos añadido agujeros en 2 puntos para la bomba. Esto permite colocarse en una posición más baja para los niños más pequeños y una posición más alta para los más viejos de la bomba. El diseño del bastidor da soporte sólido a las canaletas pero también permite un acceso máximo a las canaletas durante la reproducción. Dos travesaños el marco firmemente en el localización de los orificios cortadas en los lados de la base y proporcionar una plataforma plana de la sección final del canal de canal para sentarse.
Para conectar los dos lados y proporcionan un asiento sólido para las canaletas utilizamos ejes de rosca M12 como se muestra. Estas fueron fáciles para nosotros en una tienda local de la máquina pero simplemente usando el pasador de madera haría el mismo trabajo y pesaría menos.
4 sets de M6 pernos con las tuercas de ala se utilizan para unir los travesaños.