Paso 3: Localizar el bosquejo de la función de catálogo


Puede utilizar la herramienta de dimensión así como si desea que el cortador se coloca para sólo un uso parcial del perfil.
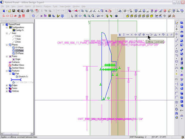
Limitan la parte superior Vertical largo del esbozo del cortador a la izquierda/parte delantera de la pieza. Restringir la línea Horizontal para el rodamiento en el borde superior de la pieza. Debe colocar el dibujo de Perfil de corte en la esquina superior izquierda de la pieza como se muestra en la imagen 2.
Cerca el bosquejo seleccionando el Active 2D Sketch botón o F5 para regenerar todo.













