PALILLO de POGO de fuerza industrial (9 / 27 paso)

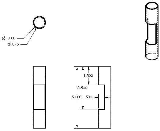
Paso 9: Corte y ranura dos 5 pulgadas piezas de tubo redondo

Utilice una sierra para cortar dos tramos de 5 pulgadas de la tubería redonda han dejado. La máquina o cortar una ranura (2 pulgadas de ancho, 1/2 pulgada de profundidad) en el centro de cada pieza y asegúrese de que la tubería rectangular encaja perfectamente en la ranura.

Estas piezas celebrará las gomas sobre el paso.

Artículos Relacionados

El palillo de Pogo de la locura

El palillo de Pogo de la locura

bien el título lo dice todo. Se trata de un Instructable rápida de un proyecto que hago con mi clase de carpintería metálica 8 grado.  Cada paso del Instructable será un día en la clase. Voy a empezar con una lista diaria de herramientas y materiales
Palillo de Pogo

Palillo de Pogo

esto es un palo de pogo que diseñé utilizando ProE e impresa en plástico ABS con una impresora 3D.Se compone de 2 componentes de plástico: un eje central y la estructura restante del palillo de pogo. También hay un resorte y pasador para permitir que
Palillo de Pogo de 2x4s

Palillo de Pogo de 2x4s

Con dos 2x4s, dos gomas y dos horas, puedes hacer un palo de pogo de funcionamiento, tamaño adulto.Hace un par de años hice un palo de pogo metal bastante duro para la escuela (véase este instructable), pero ese proyecto requiere de soldadura, mecani
Estante de especia de fuerza industrial

Estante de especia de fuerza industrial

objetivos de diseño:1. estante de especia robusto para una concurrida pizzería de NYC2. capaz de sobrevivir a múltiples caídas desde 4 pies3. tienda 20 + especias grandes contenedores4. use madera de 1 x 25. Coloque dentro de un mosaico de 12 x 12Mat
Calentadores de pies de fuerza industrial para el tostado de los pies

Calentadores de pies de fuerza industrial para el tostado de los pies

Hay un número de Instructables bien alrededor de la web que muestra cómo calentar tus pies fríos microondas bolsas de arroz colocados bajo las plantas de los pies. Por desgracia, sufro de extremadamente pies fríos y las bolsas de arroz no proporciona
El estante de aspecto Industrial de 5 minutos

El estante de aspecto Industrial de 5 minutos

Hay muchas maneras de agregar un estante. Este es un rápido, busca uno que tiene buena fuerza industrial.Paso 1: materialesPiezas de tubo encontraron en casa Depot en la isla de plomería.2 x 1/2 x 6 pulgadas galvanizado niple roscado2 x 1/2 pulgada g
Industrial Twist Ties

Industrial Twist Ties

Gracias Instructible DIY de seadraggin flexible atar lazos para la inspiración. La única diferencia real entre los dos es el metal utilizado para las vísceras.Hacer tus propia fuerza industrial flex los lazos con alambre de cobre y Molle. Sirve como
Construcción de una escala de 1:1 Portal Gun con luces

Construcción de una escala de 1:1 Portal Gun con luces

Introducción:Este Instructable detallará el proceso pasaba por construir mi propio Dispositivo Handheld de Portal Aperture Science [AKA la "Portal Gun"] de los juegos de válvula Portal y Portal 2. Aunque la pistola de portales es el foco princip
Disfraz de Jawa de Star Wars

Disfraz de Jawa de Star Wars

Paso 1: Paso 1: el patrón y corte Adaptado un patrón para los Jawas y corte de arpillera que compré en tejidos de Hancock por alrededor de $6/ yarda.  Usé unas 3 yardas por traje.  Yo la túnica más larga con las mangas más amplia y la campana una pie
DIY fusionados con pendientes de vidrio en horno de microondas

DIY fusionados con pendientes de vidrio en horno de microondas

Vidrio en un horno de fusión es una técnica fascinante que permite a los artistas a crear proyectos únicos y magníficos.En este instructables, usted aprenderá a hacer pendientes de vitrofusión en casa.Si te gusta mi instructables, por favor vote por
Cartera de cartucho de Super Nintendo con sonido, luz y almacenamiento de claves

Cartera de cartucho de Super Nintendo con sonido, luz y almacenamiento de claves

me encanta todas cosas de Nintendo, pero recientemente mi cartera de cuero, temática de controlador ha sólo sido cayendo a pedazos. Entonces una idea me llamó la atención, ya que no pude encontrar una cartera que podría llevar a cabo todas mis cosas
Mejor informática a través de Velcro: Hacer el Dock de Laptop A para HDD externo

Mejor informática a través de Velcro: Hacer el Dock de Laptop A para HDD externo

el problema:Rara vez es un lugar seguro y conveniente para poner un disco duro externo portátil cuando se utiliza un ordenador portátil en una situación móvil, no de escritorio.Ejemplo:  Está trabajando en su computadora portátil y desea copia de seg
Mejor con un medidor de cadencia de bicicleta

Mejor con un medidor de cadencia de bicicleta

Me encanta la bici. Podría decir que soy un aficionado (sólo tengo un par de pantalones cortos de spandex), pero siempre estoy buscando nuevas formas de mejorar. Recientemente estaba hablando con un amigo con más experiencia, que me introdujo a la id
Hacer tu propio Percebe de Half-Life usando materiales del hogar

Hacer tu propio Percebe de Half-Life usando materiales del hogar

El videojuego Half-Life hizo su debut en 1998, nos presenta el héroe físico, Gordon Freeman, y un anfitrión de enemigos mortales, sobrenatural. Una de las criaturas más extrañas y más mortíferas fue el percebe, que le cuelgan debajo de los puentes, g