Paso 9: Instalar el proyector

Puede utilizar un proyector diferentes, pero usted querrá asegurarse de que es un proyector de tiro corto; de lo contrario, la imagen que se proyecta puede ser bastante un poco más pequeña.
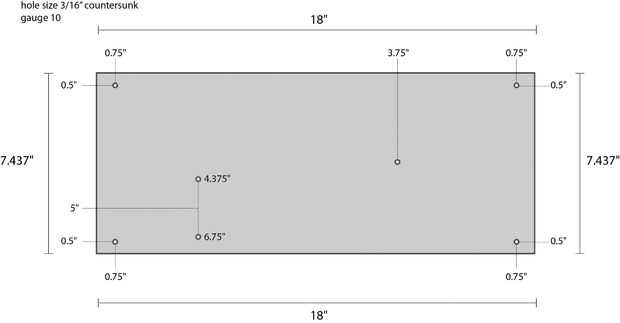
Para mantener el proyector en su lugar, utilizamos una placa de acero personalizada que se enrosca en el marco de aluminio de la tabla. El proyector debe atornillarse con cuidado sobre la placa.
Hay 3 agujeros en el centro de la placa y 3 agujeros en la parte inferior del proyector. Entre la placa y el proyector, usted querrá usar a ¼" espaciadores de nylon con un agujero no roscado en el centro. Coloque a los espaciadores en los agujeros en el proyector y colocar la placa en la parte superior, alineando los agujeros. Fije con tornillos de cabeza 12mm M4 contador hundido.
Una vez que la placa y proyector juntos, tendrá que adjuntar a los puntales de aluminio marcados en el diagrama de estructura. Para adjuntar a este puntal, 4 agujeros en la placa del exterior necesitará un tornillo de M4 con un tornillo de 6mm.
Se desea mover el conjunto del proyector como arriba en el montante como sea posible, pero antes de que se necesita para fijar el grado 90 conector HDMI y el poder de 90 grados cord. El cable de alimentación debe deslizarse en el corte en el puntal (parte C).
Una vez instalado el proyector, puede conectarlo a la computadora y encenderla.
Se desea cambiar algunos ajustes básicos del proyector para que no restablece clave, apagado, etc..
Cambiar los siguientes ajustes:
CA On
Fuente de auto apagado
Power-Up fuente HDMI
Clave del auto apagado
Bulbos del reemplazo para el proyector se pueden pedir aquí.