Mesa de Bar de IKEA de convertir en una tabla de mercadillos (2 / 3 paso)

Paso 2: Resto del brazo

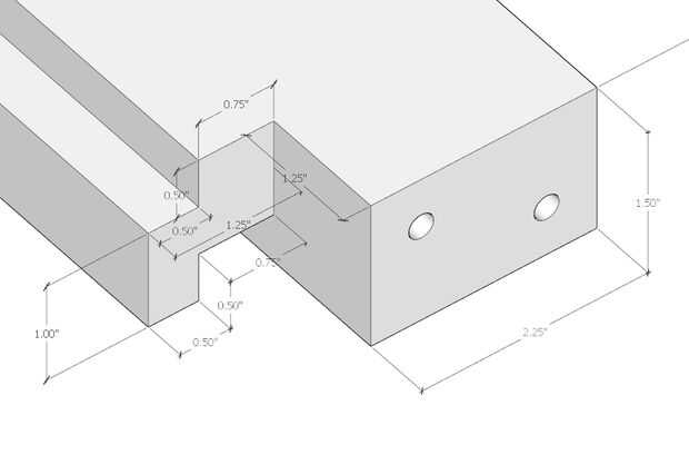
Consulte el archivo de Sketchup y los cuadros que adjuntamos.

  1. Cortar 2 x 4.
  2. Router como loco.
  3. Taladre los agujeros desde abajo para poder acoplar a los lados.
  4. Pintar el borde interno.
  5. Montar encima de su tablero de juego / lado paredes pieza.
  6. Tapizado! Tengo absolutamente apestan en este y sin puntas para ofrecer, que quiera externalizarlo. Lo hice yo y creo que voy a hacer otra vez ya que se ve tan cutre.

Artículos Relacionados

Mesa de centro de Ikea de 3 $

Mesa de centro de Ikea de 3 $

hace algún tiempo había estado utilizando una caja de Ikea HÅBOL como una tabla. Había querido hacer la tapa más durable usando algún tipo de laca. Me topé con algunos paneles de cocina baratos en Ikea un día y los dos se unieron (con pegamento) para
Mesa de bar de Edison

Mesa de bar de Edison

Esta es la famosa tabla de bistro de Edison!Durante la sesión Intel IoT Roadshow en París, hice una tabla conectada nube para restaurantes con mi equipo. Teníamos muchos objetivos para esta hackathon con esta tabla:Permite restaurante gerentes monito
Cómo convertir una tabla de planchar normal de planchar de una Quilter

Cómo convertir una tabla de planchar normal de planchar de una Quilter

mi esposa y algunos de sus amigos son quilters ávidos. Los bloques que hacen como crean nuevos edredones deben plancharse por el camino y un tablero que plancha regular es un poco demasiado pequeño para sus gustos.  Ellos querían algo más amplio que
Carro Bar de IKEA Hack - Vittsjo

Carro Bar de IKEA Hack - Vittsjo

Este Carro de barra se realizará con 2 X Vittsjo - escritorios de computadora portátil. Son relativamente baratos para todos será la pena al final. Un comparable carro para este tamaño de barra puede ejecutar desde la venta por menor de $300-$600 par
Convertir una tabla de caballete en una mesa!

Convertir una tabla de caballete en una mesa!

Hey se asoma,Soy nuevo con mi segundo instructable. Este escritorio es un poco de mi tabla que voy a construir mi apartamento. Me esperanza este instructable también inspira a algunos de ustedes a algunos muebles de madera que podrían utilizar alguno
Mesa de centro de Ikea GORM

Mesa de centro de Ikea GORM

después de ver Banco de GORM de randofo / proyecto de estantería, pensé en una mesa de café sería muy posible y se ven bastante bien con algunas ligeras modificaciones. Que recientemente había montado una estantería GORM pensé que ver una mesa de caf
Convertir una lámpara de IKEA APPLARO regular en una bonita lámpara.

Convertir una lámpara de IKEA APPLARO regular en una bonita lámpara.

Mi compañero compró un par de IKEA APPLARO lámparas y he pensado poner algunos mi sobras del papel de arte encima de ella, sería mejor. Y seguro que lucen mejor. El proyecto tomó cerca de 2.5-3 horas. Puede utilizar cualquier papel fino que no bloque
¿Una redacción mesa hecha de una mesa de centro de IKEA

¿Una redacción mesa hecha de una mesa de centro de IKEA

No cortador del laser? ¿Ninguna máquina CNC? ¿Ninguna impresora 3-d? Miedo no camaradas, este es un instructivo para el hombre.Este instructable es más para inspirar que copiar, ya que creo que la mayoría instructables tienden a hacerlo de todos modo
Convertir una tabla a un mesa para cambiar pañales del bebé

Convertir una tabla a un mesa para cambiar pañales del bebé

nuestra hija nació hace unos días.Pensamos que una simple tabla servirá a los efectos de una mesa de cambiar pañales.Pero después de sólo unas pocas veces cambiar pañales nos dimos cuenta de la mesa es demasiado baja.Así que construyo este simple adj
Mesa de Bar de leñador

Mesa de Bar de leñador

Quería una barra de tabla que podría ser rueda donde se necesitaba un lugar para congregarse. Se trata de cómo resolví mi problema.Paso 1: Recoger los pedazosPara esta tabla, he utilizado1 de 36" diámetro roble redondo 5" de espesor1 12" tr
Mesa mini-bar

Mesa mini-bar

En pocos días yo iré detrás de mi último año en la uni. Hasta el momento su estado muy bien, pero con la sabiduría de 3 años detrás de mí ¿qué podría hacer para mejorar la experiencia? un mini-bar por supuesto!!!!!!Para mi mini-bar que iba a basarse
Reclamó la mesa de Bar de madera

Reclamó la mesa de Bar de madera

Esta tabla de piso está hecha de placas de cubierta de madera vieja.Todas las partes de la tabla son siempre atornilladas y pegadas.Paso 1: dimensionamiento Paso 2: tablero de la mesa Paso 3: piernas Paso 4: pies Paso 5: antes de lijar Paso 6: despué
Mesa de centro de transforma en una tabla de pizarra de los niños

Mesa de centro de transforma en una tabla de pizarra de los niños

Este instructable muestra cómo mi esposa volvió una mesa de centro $5,00 yardsale en una mesa de juego para nuestros hijos. Honestamente era muy escéptico acerca de esto! Me sorprendió gratamente con el resultado!!Paso 1: Materiales necesarios... 1 -
Volver a designar una mesa de café en un banco acolchado en una hora!

Volver a designar una mesa de café en un banco acolchado en una hora!

Por alguna razón, tengo 3 mesas de centro y no hay sofá. Nunca pensé sería realmente me molesta, pero tres meses sin lugar para sentarse mi trasero y tiene desesperado. Soy un estudiante solo mamá y tiempo completo, así que necesitaba un soultion que