Paso 4: Cortar tableros


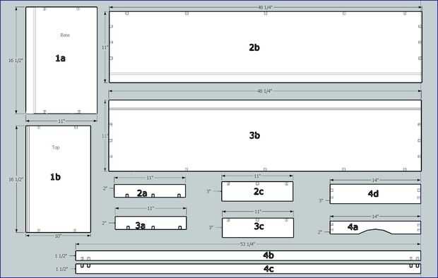
El pasador de agujeros aparecen en la imagen se muestran en las fotos.
Te recomiendo colocar dos o más en un tablero con espaciado incluso, el más grande la pieza, los tacos más le pongas en él. prueba y poner las clavijas de una pulgada o más de los bordes cuando sea posible.
Allí no son ninguna posición específica para ellos acababa de usar de lo que parecía que podría funcionar mejor.
Utilizar estas fotos como referencia durante todo el proyecto (imprimirlas obras bien, entonces no tienes que mantener la conmutación entre archivos)