Paso 2: El caso










Panel lateral
Ver fotos 2 y 3
8' largo, 13" de ancho. Madera contrachapada o sólido. Si utilizas sólido, podría tener dificultades para encontrar madera todo el 13". Terminé uniendo dos piezas más estrechas. Hacer uno o dos, dependiendo de si el gabinete estarán en la esquina con el lado contra una pared o independiente, en cuyo caso usted tendrá que hacer dos.
El dibujo es para el lado izquierdo del gabinete. Crear una imagen en espejo de la derecha.
Las tres mortajas transversalmente al ancho del panel son ¾" de ancho y 3/8" de profundidad para acomodar estantes.
La barbilla larga a lo largo de la longitud de la tabla es para la parte posterior del gabinete. Omitir esto si no vas a poner un armario.
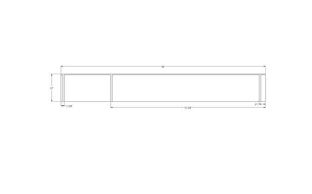
Soportes de extremos
Véase el cuadro 4
Si sólo haces un panel lateral, necesitará ayudas para el otro lado. Si estás haciendo los paneles laterales, salte esta parte.
Estos son simplemente tablas 8' x 2½", con ranuras cortadas para que coincida con la pieza lateral. Hacer dos.
Cara
Ver fotos 5 y 6.
Que tres de los soportes verticales (montantes) y dos de las tres horizontales (largueros). Dimensiones indicadas en el cuadro 5. Estos deben ser de madera sólida.
Este es un buen momento para cortar las muescas en los montantes finales (pero no el centro) para alojar las bisagras. Puedes ver las muescas en el archivo de cad. Yo no he dado las dimensiones o profundidad de las muescas porque dependen de las bisagras que se utiliza. Si se salta este paso, tendrás que hacerlo con cinceles más tarde que es más difícil y menos preciso. Ver las dos últimas fotos.
Montar como se muestra en la figura 6. Te recomiendo galletas o espigas de resistencia.
Nota: Hice la cara con 1" de madera en lugar de ¾" para que coincida con los gabinetes existentes. Los archivos de sketchup reflejan esto. Usted puede utilizar ¾" Si desea sin cambiar el diseño.
Estantes
Véase el cuadro 7. Hacer tres estantes simples. Madera sólida o madera contrachapada son aceptables. En el diagrama, se puede ver que el estante del medio es menor que la parte superior e inferior de 3/8". Esto es para acomodar el panel posterior. Si no vas a tener un panel posterior, hacer todos los estantes el completo 13" profundidad.
Soporte central
Vea la última foto. Un simple de 13 "x 2¼" rectángulo para apoyar el centro del gabinete. Esto no es visible, por lo que cualquier contrachapado barato hará.