Paso 8: Sellos de la puerta




Los sellos son tiras delgadas, de 1/8" de espesor que van alrededor de los lados y parte superior de las aberturas del gabinete. Cuando las puertas están cerradas, cierran al ras contra los sellos. Esto debería ayudar a desalentar insectos entren.
La primera imagen muestra las juntas resaltadas en azul. La segunda imagen es una imagen de detalle de los sellos desde el interior.
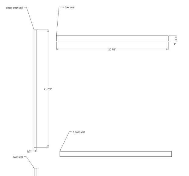
Superior tienen 207/8"largo y 1" de ancho. Hacer cuatro.
Los sellos de la parte superior son 217/8"largo y ½" todo. Hacer dos.
Los sellos laterales inferiores son 69½" largo y ancho de ½". Hacer dos.
Simplemente pegar y sujetar en su lugar. Unos clavitos dolerá tanto.