Fabricación digital - caja impresa 3D proyecto tres (4 / 6 paso)

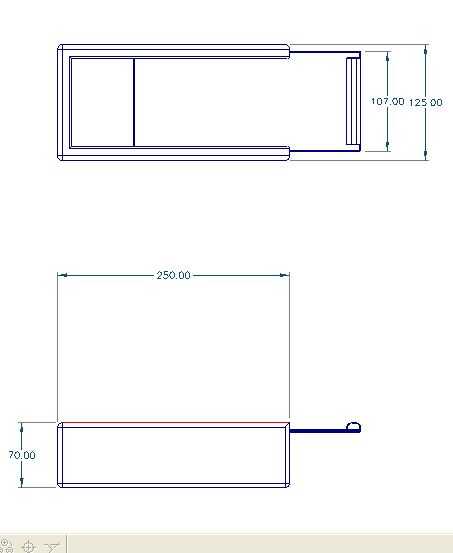
Paso 4: Ingeniería dibujo

Dibujos de ingeniería son grandes si usted está haciendo su proyecto de la manera tradicional (madera y herramientas de mano) y se pueden exportar como un archivo JPG, mapa de bits o dxf a correo electrónico, publicar en un sitio web o impreso papel.

Haga clic en las fotos para empezar

Artículos Relacionados

Fabricación digital - corte del proyecto cuatro laser caja

Fabricación digital - corte del proyecto cuatro laser caja

Este es el en una serie de Instructables sobre cómo utilizar CAD (dibujo asistido por computadora) y CAM (ordenador asistido por mecanizado)Si han estado siguiendo a lo largo de usted debe conseguir bastante bueno en el uso de prodesktop por lo que n
Fabricación digital - proyecto siete, dibujo e importar plantillas de

Fabricación digital - proyecto siete, dibujo e importar plantillas de

Este es el sexto de una serie de Instructables sobre cómo utilizar CAD (dibujo asistido por computadora) y CAM (ordenador asistido por mecanizado)Esta vez vamos a ver en la fabricación de objetos 2D como plantillas plantillas y juntas.Plantillas aún
Fabricación digital - etiqueta de la clave de proyecto

Fabricación digital - etiqueta de la clave de proyecto

fabricación de Digital no tiene por qué ser costoso o difícil, con un ordenador viejo, software libre y a contratar una máquina para unos pocos minutos usted puede hacer cosas que no sería posibles en un taller casero!Esta es la primera de una serie
Fabricación digital - proyecto dos escritorio placa de características

Fabricación digital - proyecto dos escritorio placa de características

fabricación de Digital no tiene por qué ser costoso o difícil, con un ordenador viejo, software libre y a contratar una máquina para unos pocos minutos usted puede hacer cosas que no sería posibles en un taller casero!Si usted no ha visto proyecto un
Chibikart: Rapid-Prototyping un sub eléctrica Go-Kart usando fabricación Digital y componentes de Hobby

Chibikart: Rapid-Prototyping un sub eléctrica Go-Kart usando fabricación Digital y componentes de Hobby

Chibikart! es un kart eléctrico 2WD muy pequeño pero potente y maniobrable que puede crear usando el estándar industrial y componentes de hobby y marco digital fabricado. Uso de baterías de iones de litio modernas y motores de imán permanente sin esc
Fabricación digital: Patín del corte del Laser

Fabricación digital: Patín del corte del Laser

Patín del corte del laserTradicionalmente, al hacer patinetas hojas de chapa son pegadas, la madera es doblada en forma y luego cortar con una sierra.Tenía curiosidad si podría voltear estos pasos, aplicar procesos de fabricación Digital y crear una
Fabricación digital: Laminación molde de doblado

Fabricación digital: Laminación molde de doblado

Crear el molde para el laminado doblado en un cortador láserEste Instructable le mostrará el proceso de trabajo fabricación Digital solía tomar un modelo 3D y crear un láser de corte, molde de laminación de cartón doblado.Crearemos un diseño de patín
3D caja impresa del "Corazón".

3D caja impresa del "Corazón".

3D caja impresa del "Corazón".Este cuadro puede ser un buen regalo.Esta caja es simple. Dibujar un corazón. :)El dibujo interior más complejo.Examinemos punto por punto lo.Paso 1: 1. dibujar un corazón.Dibujar una rosa dentro de un corazón.2. Ut
3D ' centrífuga Puzzle caja impresa ' - resuelto con una vuelta...

3D ' centrífuga Puzzle caja impresa ' - resuelto con una vuelta...

Para este proyecto decidí explorar el mundo y el uso de 3D impresión aún más después de mi exploración del 3D imprime iPhone mercado de casos donde diseñó, creó y ahora venden la 'trípode del iPhone - 3D impreso casos de iPhone con construido en tapa
Bajar de la cama, con Arduino, 3d caja impresa y programado con Embrio

Bajar de la cama, con Arduino, 3d caja impresa y programado con Embrio

La Idea básica es crear algo que se puede detectar cuando mis perros se ponen en el sofá cuando no estoy allí y "les anima a bajar". Esto se logra con un pasivo Ifrared sensor y hacer ruidos que no le gusta los perros.Vi otro proyecto similar qu
El Perplexus propia para la fabricación Digital de diseño

El Perplexus propia para la fabricación Digital de diseño

para los que no saben un Perplexus es un juego de puzzle. Tiene una esfera de plástico transparente con un laberinto en el interior. El objetivo es maniobrar el mármol a través del laberinto sin caer fuera de la pista. Desde la primera vez que vi uno
Técnica: Fabricación Digital de mano

Técnica: Fabricación Digital de mano

Para el otro 99% de los fabricantes, aquí un instructivo sobre cómo hacer cosas que son tan complejos y precisos utilizando herramientas que puede encontrar en cualquier ferretería y plantillas que se puede imprimir en su tienda de impresión local.Al
¿Fabricación digital: Banjo Fretless de basura

¿Fabricación digital: Banjo Fretless de basura

no tiene una piel de mapache?  Vamos a usar el plástico de polietileno de una bandeja de comida.¿no tienes madera cara?  vamos a utilizar madera, desechos de los cuales son fáciles de conseguir.¿no tiene trastes?  No hay problema.incluso mejor, digit
Cómo hacer que su 3D impresión proyectos magnéticas

Cómo hacer que su 3D impresión proyectos magnéticas

Este Instructable muestra cómo incrustar los imanes en su próximo proyecto impreso 3D para obtener resultados suoper coolCosas que necesitará:ImanesPinzas deAcceso a Software de CADAcceso a una impresora 3D FDM: esta técnica para magnetizar su 3D imp