Paso 2: Perfil de corte de espejo

Al crear perfiles de corte, es útil para localizar y definir el eje de rotación de modo que puede ser utilizado para reflejar el perfil.
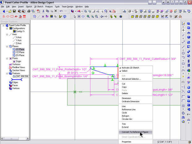
Después de crear el dibujo, haga clic derecho sobre la línea sobre la que se refleja el perfil y seleccione "Convertir a la figura de referencia" para convertir el Regular figura a una figura de referencia. Un esbozo válido tiene que ser una figura cerrada, y refleja una línea Regular dividiendo las dos mitades evitará la creación exitosa de una función.