Paso 5: eje X














Y aquí viene el paso más difícil...
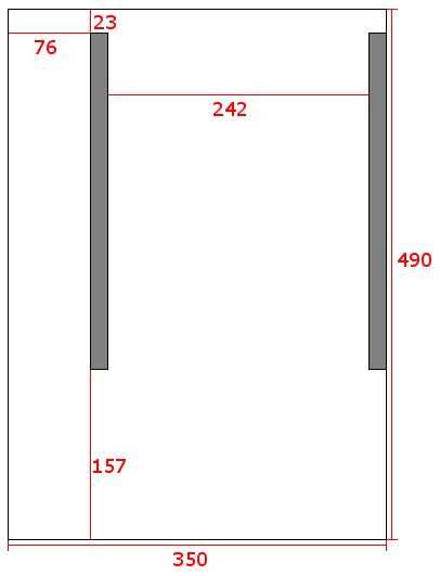
Tiene que montar dos deslizadores tan paralelos como sea posible. En primer lugar, lije las superficies de los deslizadores. También puede lijar un poco la base. Después de limpiar, utilice pegamento de madera (o similar) para pegar el primer deslizador directamente en el borde de la base. La foto de arriba muestra las dimensiones.
Para pegar el segundo deslizador, necesitarás algo con 242 mm de ancho. Debe tener bordes paralelos. Como puede ver, no soy siempre puede explicar lo que tienes que hacer. Sólo tienes que seguir las imágenes:).
Montaje del eje Y
Esperar algún tiempo para asegurarse de que reguladores paralelo se pegan bien. Después de - como siempre - de la arena y limpiar las superficies. Usamos el pegamento (por plexiglás). Para medir el ángulo recto, use el tablero de los muebles base - debe coincidir. Trate de pegarla tan perpendicular como sea posible, porque esto afecta a la apariencia de todos los dibujos. Es importante que no mueva los controles deslizantes hasta que se pega completamente (le dan un par de horas).
Montaje de los interruptores de motor y el límite de X pasos
Mientras tanto, usted puede montar el motor de X. Sólo tienes que seguir las imágenes. Cable de 12 hilos gris se puede pegar a la base con pegamento de madera.