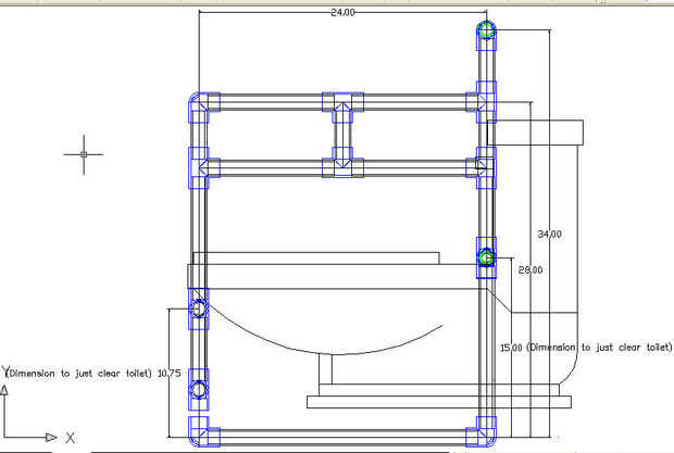
Paso 2: Inodoro alargado




Este diseño es para un inodoro alargado.
Su profundidad es un poco mayor, y así los brazos son un poco más. Ya que esto tendrá tensiones más altas que el me dise que no puedo ser responsable de posible fracaso.
Les dejo esta hasta aquellos que pueden construir éste.
Una manera de reducir el estrés sería utilizar, decir 1-1/2 PVC, para los brazos, superiores e inferiores. Esto requeriría la necesidad de reductores en la parte delantera y trasera. Los brazos más grandes también se sentirían mejores a los usuarios. Había considera que incluso con la mía.
Sí, utilizando reductores en la parte delantera y trasera, será ser estructuralmente. La tensión es máxima en el punto donde estará la mano. Tensiones de flexión será el mínimo aquí. En el frente y atrás, la preocupación principal es tensiones de esquileo y deben ser manejados adecuadamente. Flexión de brazo (un resultado de las tensiones de flexión), aunque es pequeño, se transferirán a las piernas. Las piernas deben ser capaces de manejar esto.