Paso 1: Diseñar para nosotros



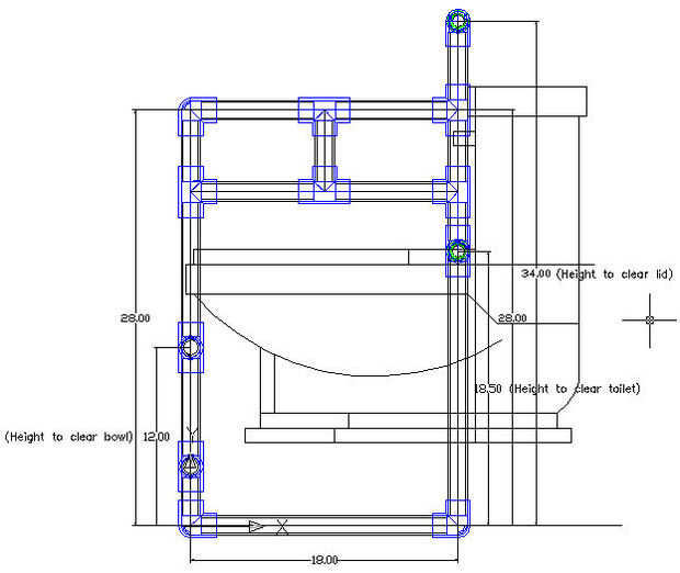
Estos dibujos son de uno de nuestros mayores, más redondeado, aseo.
He demostrado los puntos que han de respetarse.
El diseño utiliza 1 pulgada PVC, excepto un área crítica. Cuando la tapa del inodoro hay espacio limitado detrás y justo por encima de él. Aquí, utilicé una pieza de 3/4 PVC aquí con reductores.