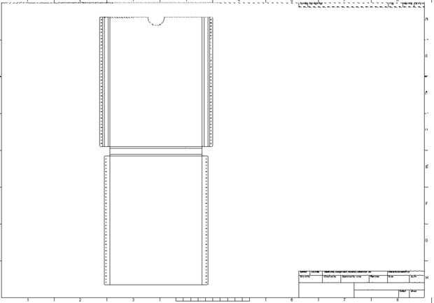
Paso 4: Aquí está el dibujo "final".

El siguiente paso es decirle a Alibre para exportar el modelo de chapa a un dibujo plano y para su "desarrollo" - que significa que el programa abrir y aplanar los dobleces y trabajar cómo el metal tiene que estar doblado, o en este caso, cómo el cuero tiene que ser doblado. El dibujo se exporta al archivo DXF (AutoCAD estándar) para el sistema de láser, pero primero necesita alguna modificación.
El dibujo también incluye todas las "doble líneas" que sería utilizadas por el fabricante de chapa para trabajar a donde colocar las herramientas utilizadas para hacer los pliegues. Estas necesidades de eliminar - yo zapped por CorelDraw y les editado hacia fuera allí.
El archivo es "laser listo"