
















Resumen de la tarea (situación)
Global - Tech ingeniería es una empresa de ingeniería social. Han encargado de usted y su grupo de ingeniería científica investigar un número de innovadores, experimentales, pequeños – escala de sistemas de generación de energía. La compañía quiere producir en masa un sistema de energía que es eficiente y puede ser utilizado por las familias que viven en áreas remotas de países en desarrollo.
El sistema debe tener las siguientes consideraciones:
de alta eficiencia.
hecho de disponibles, costo eficientes materiales (preferentemente reciclados o de bajo impacto).
medio ambiente sano (subproductos nocivos ni materiales tóxicos).
pequeño – escala o desmontar fácilmente.
ser capaces de masa producido en un taller estándar.
Después de haber enviado su informe, se le pedirá a esbozar el modelo un sistema de generación (basado en su investigación en el más adecuado) y crear un prototipo. Además también debe producir un plan de empleo y trabajo de dibujo Global-tecnología para producir el generador en sus fábricas. Por último se le pedirá para probar su prototipo para la eficiencia y mejorar si es necesario.
Puede empezar por investigar los siguientes sistemas:
motor de Stirling
turbina de Tesla
generador de van de graff
motores de vapor
lentes de Fresnel
turbinas de viento
espejos parabólicos
quemadores de sol
horno solar
calentadores de agua solares
Descripción de la tarea
2A) análisis (10 marcas)
Comparar los sistemas de generación de energía investigado en la tarea 1a) con su grupo de ingeniería. Como un grupo de tomar una decisión sobre que sistema de generación desea basar su prototipo en. Justificar por qué ha elegido el sistema, destacar las características de diseño clave y explicar qué ideas se han seleccionado o rechazado. ¿Su solución elegida satisface las consideraciones dadas en la descripción de la tarea? ¿Cuáles son los requisitos funcionales? ¿Que es lo que debe ser capaz de hacer? Algunas consideraciones que desee incluir en su análisis; selección de los materiales, el tiempo en aislamiento, problemas de seguridad, estáticas, ruido, corrosión, rodamientos adecuados / arbustos, tamaño, peso, volumen.
2B) bocetos de Ideas y conceptos (20 marcas)
Experimento con una serie de bocetos para producir algunas posibilidades de rediseño. Los nuevos diseños deben ser una mejora en el diseño original. Deberían demostrar cómo están encontrando una solución a la cuestión clave del diseño y la mejora subsecuente. No te olvides de evaluar sus conceptos en relación con las cuestiones clave del diseño. Comunicar sus ideas a su grupo de ingeniería para obtener retroalimentación constructiva. Deben anotarse todos los bosquejos.
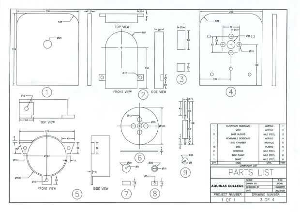
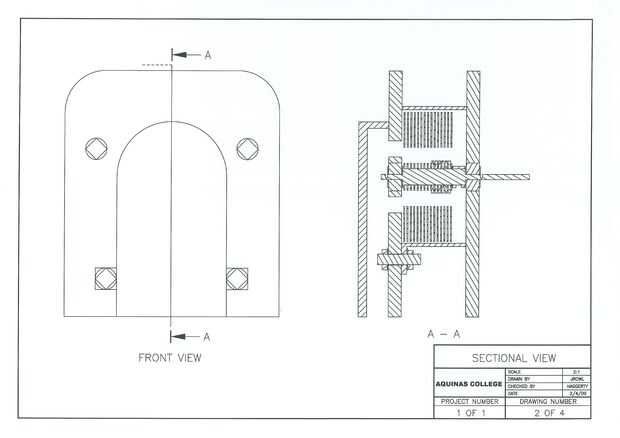
2 c) modelado 3D & trabajo dibujo (20 marcas)
Modelo de la mejor solución utilizando ProDesktop. Incluir un dibujo de presentación renderizada y un mínima 3 vista ortogonal trabajo dibujo con dimensionamiento adecuado.