Paso 1: La base



Perdón por la falta de fotos, pero por el momento decidí este proyecto y instructable ya había terminado la base.
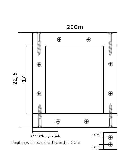
A la base, cortar cuatro trozos de listón de madera, las dimensiones se especifican en la imagen, para evitar problemas al montarlos que utilicé una mitra y una abrazadera para mantener el listón unido a él, esta herramienta mantiene el disco en posición vertical, evitar cortes irregulares, una cantidad mínima de lijado puede hacerse después.
Cuando hayas terminado de cortar el listón, hacer el rectángulo definitivo forma con él, jugar con la posición de las lamas para encontrar la configuración óptima, una vez alineada, sosténgalos juntos aplicando presión con la abrazadera a los lados cortos del rectángulo, ahora están listos para ser perforado. Marcar la posición de los tornillos, he decidido ponerlos a 1cm del borde. Con algunas mediciones, el centro del listón y marcar la posición, una vez que ha encontrado, taladre los agujeros, que deben ser ligeramente más estrechos que el tornillo.
Una vez que todos los agujeros son perforados puede quitar la abrazadera (o no si prefieres) y coloque los tornillos, pongo madera pegamento en cada unión para reforzarlos.
Punta: Si quita las abrazaderas cuando los agujeros se han hecho ya, hacer alguna marca donde dos piezas se fusionan (como círculos, triángulos, líneas), si usted les trastorno, usted puede siempre ponerlos juntos como un rompecabezas.
TIP: Si tus tornillos de madera tienen un ángulo central puede utilizar un poco especial o una broca de metal grande (8mm por ejemplo) para hacer un avellanado para que los tornillos no sobresalgan.
Para colocar la cubierta, sólo dibuje el contorno sobre un tablero de madera, corte y fíjelo al marco del listón con tornillos, puse 2 en cada lado, dejando una separación entre ellos de aproximadamente 1/3 la longitud de ese lado. Si eres como yo, las posibilidades son algunas de las tablillas o piezas del tablero sobresalga ligeramente de la forma que buscamos, así que agarra ese papel de lija de 80 grano o una herramienta equivalente y comienzo lijado hasta que los bordes son totalmente planos.
Nota: No es necesario copiar las dimensiones en el milímetro, sólo la idea general y utilizar los materiales que encuentran más conveniente.
TIP: Si usted quiere su lijado para ser más preciso poner un papel de lija sobre un tablón de madera y se usa para lijar la madera, asegurará que tus piezas saldrá recto.