Paso 6: Posibilidades de futuro


En este instructable sólo un modelo de una casa está representado. La usé para probar diferentes escenarios antes de comenzar con algo real: mi casa.
Usé PoKeys controlar elementos electrónicos en el modelo de casa. Pero puede ser utilizado en una casa real, también. Tiene un montón de conexiones y características. Se puede regular en temperatura y humedad, y con agregados periféricos, que puede controlar dispositivos de potencia, también.
Para medir las variables de entorno, usted necesitará uno de los más de tablas PoSensors (temperatura, humedad, luz). Tenga en cuenta que tienes que montar los sensores de temperatura y humedad sobre 1,20-1, 50m de altura, medidos desde el piso terminado. Sensor de luz debe montarse donde sólo sol tiene influencia, en lugar de iluminación interna, por ejemplo en una carcasa IP66 con cubierta transparente, por lo que la luz del sol podría venir a través. Normalmente se monta en una fachada.
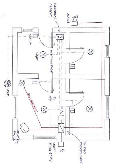
Para controlar dispositivos de alto voltaje, que superan las actuales limitaciones de PoKeys sí mismo, necesita tablero de extensión de relé, llamado PoExtBusRE. Uno soporta 8 salidas, pero usted puede agregar más, si es necesario.
Sensor y relé tableros comunican con PoKeys por fábrica preparado cable que es muy corto (aprox. 20cm). Por lo tanto usted tendrá que instalar los 3 dispositivos (controlador, sensores, placa de relé) cerca unos de otros. Podría ponerlos en una caja montada al ras y agregar, por ejemplo una pantalla LCD 4 x 20 en su portada, para mostrar Estados de múltiples sistemas. También puede instalar unos pulsadores para controlar manualmente la casa inteligente, si no de ajustes automáticos complacer sus expectativas.
Líneas de alta tensión que viajan desde la placa de relé a 110 / 230 dispositivos de Vac alimentado (ventilador de ventilación, luces) no representan un problema, ya que puede ir fácilmente a 300m y más. Usted puede controlar los circuitos de potencia en el cuadro de la pared gabinete, eléctricos, los interruptores de luz o en el propio dispositivo. Tenga en cuenta que esto tiene que hacerse en algún lugar entre el fusible y el dispositivo.
Puede controlar dispositivos de bajo voltaje (como sistema de calefacción central, AC, persianas automáticas, ventanas y puertas y un sistema de alarma) directamente de PoKeys. Todos los dispositivos de baja tensión tienen una electrónica incorporada que también apoya algún tipo de señal de entrada externa para el control de su funcionamiento. PoKeys también tiene características bastante exhaustivo control (regulación ON-OFF e incluso de la PID) que vienen bien cuando se conecta a diversos sistemas de la HVAC.













