Paso 6: Cortar la Base inferior de la plataforma del balanceo





La base inferior se usa para conectar las 4 ruedas y el giro.
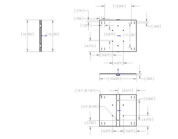
La dimensión total es 14-1/4" W y 16-5/8" H
La base inferior se usa para conectar las 4 ruedas y el giro.
La dimensión total es 14-1/4" W y 16-5/8" H