Sierra de mesa patín para cortes angulares precisos (7 / 7 paso)

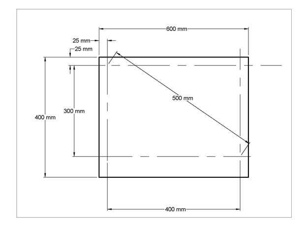
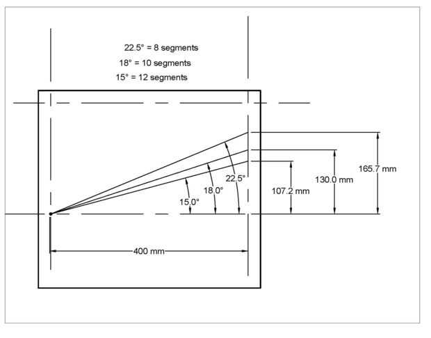
Paso 7: Unidades de SI para el diseño

Estos dibujos proporcionan unidades métricas para diseños.

Artículos Relacionados

Sierra de mesa patín (con tensionadores de sujeción rápida)

Sierra de mesa patín (con tensionadores de sujeción rápida)

Tuve accidente de contragolpe en la tienda (vinculada en el video de arriba), así que decidí construir una cruz corte trineo para hacer más seguro más precisos cortes transversales en la Sierra de mesa. Quería hacerla mía usé el plástico UHMW para lo
Cómo hacer un marco de Sierra de mesa patín

Cómo hacer un marco de Sierra de mesa patín

Este es el primer video en una serie en la fabricación de marco de imagen. Este video le da una visión general sobre cómo hacer el trineo de marco de imagen final. Para hacer perfecto Marcos usted necesita dos cosas... La esquina de dos piezas deben
Sierra de mesa patín y brazos ajustables

Sierra de mesa patín y brazos ajustables

Este instructable le mostrará cómo hacer un estupendo trineo.Un super trineo está diseñado como un todo en la mesa de un corte de su sierra de mesa, reemplazando el original mitre y cerca.los brazos ajustables se pueden ajustar a cualquier ángulo par
Sierra de mesa patín...

Sierra de mesa patín...

Se trata de un trineo que hice para mi sierra de mesa superior RIDGID-r-4511 granito...Tiene un protector de hoja de Plexiglas extraíble... Para la limpieza... Nunca visto antes, pensamiento llego creativa... La base de trineos es madera contrachapad
Cero de inserción con holgura para Sierra de mesa DeWalt DW745

Cero de inserción con holgura para Sierra de mesa DeWalt DW745

Tengo un proyecto donde necesito hacer unos muebles de madera multilaminada de abedul báltica de grado. Esto no es lo barato que usted conseguir en el centro de mejoramiento del hogar. Este material es de mayor calidad; plys más chapa más gruesa, hue
Salida mesa para Sierra de mesa Dewalt $ 10 (incluye planos)

Salida mesa para Sierra de mesa Dewalt $ 10 (incluye planos)

La Sierra de mesa más popular en Amazonas (a partir del 15 de junio) es la serie de Dewalt DW. Es un compacto, grandes contratistas mesa Sierra. Pero realmente necesita una mesa de salida para coger la madera en pie.Quería una salida de la tabla que:
Mesa de centro para una mesa de comedor.

Mesa de centro para una mesa de comedor.

En una reciente gira de nuestro estudio, me pidió si yo podría hacer una mesa de café estilo shaker que se podría convertir en una mesa de comedor. Hice algunas investigaciones y no podía encontrar cualquier cosa que se asemejaba a una mesa de estilo
Cómo cortar círculos perfectos con una sierra de mesa

Cómo cortar círculos perfectos con una sierra de mesa

Sierras de mesa son grandes en corte recto pero cuando es hora de cortar círculos, mucha gente piensa que de otras herramientas, sierras de cinta, sierras de calar, agujero sierras, routers... etc.Bien que puede cortar perfecto círculos en la Sierra
Una sierra de mesa precisa de una sierra de mano eléctrica

Una sierra de mesa precisa de una sierra de mano eléctrica

esta foto es de 1972.  Me muestra usando una sierra de mesa que hice con una sierra de mano eléctrica, también conocido como una sierra circular.Algunos dirán, "¿por qué molestarse?" ya que ahora puede comprar una sierra de mesa de bajo costo pa
Modificación de la cerradura de ángulo hoja de Sierra de mesa

Modificación de la cerradura de ángulo hoja de Sierra de mesa

Cualquier carpintero (profesional o aficionado) le dirá que es crítico contar con cortes angulares precisos.Tengo una tabla de artesano mayor vio que está construida como un tanque. Tiene una mesa de hierro fundido y un motor muy robusto. Sin embargo
Añadir una mesa de fresadora con colector de polvo a la Sierra de mesa

Añadir una mesa de fresadora con colector de polvo a la Sierra de mesa

Este Instructable muestra cómo modifiqué mi sierra de mesa portátil para reemplazar el Banco de extensión derecha con una mesa de fresadora con bisagras. El diseño de mesa con bisagra permite un fácil acceso cambiar brocas y ajustar la profundidad de
Reaserrado de madera en la Sierra de mesa y Sierra de cinta - en Techshop

Reaserrado de madera en la Sierra de mesa y Sierra de cinta - en Techshop

Resawing es una habilidad muy útil para tener en la tienda de madera, es un tipo fundamental de corte, al igual que ripeo o transversales, pero en lugar de una tabla para cortar a la longitud o anchura, reaserrado es cortar un tablero de espesor. Est
Sierra de mesa Mini

Sierra de mesa Mini

Hola otra vez, señor útil aquí! En este tiempo, vamos a hacer una sierra de mesa Mini que realmente corta!. Es muy sencillo de hacer, y realmente funciona para pequeñas tablas de madera, palitos y este tipo de material.Echa un vistazo al video de aba
Círculo de plantilla de corte para Sierra de mesa

Círculo de plantilla de corte para Sierra de mesa

¿Necesita hacer una rueda o damas para su tablero de ajedrez de jardín? Con este fácil construir la plantilla de corte del círculo se puede ir a producción en menos de una hora!Paso 1: Herramientas y materiales necesariosHerramientasSierra de mesaLij