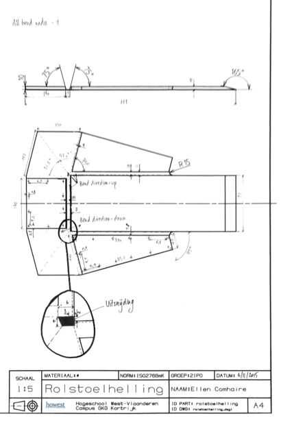
Rampa de silla de ruedas de paquete plano (2 / 8 paso)

Paso 2: Paso 2: Prepare la madera

  1. Vi las 4 piezas de madera a las dimensiones de la derecha como se ve en el dibujo
  2. Asegúrese de que los chaflanes en los lugares adecuados
  3. Pintura, barniz o aceite de las piezas de madera para protegerlas del agua y la suciedad

Artículos Relacionados

Rampas para sillas de ruedas portátiles

Rampas para sillas de ruedas portátiles

absolutamente con frecuencia es necesario para el transporte de un sistema de rampas portátiles para permitir que mi silla de ruedas entrar en casas y tiendas.   En el pasado, he intentado usar tienda-comprar rampas fabricadas de aluminio.  Estas ram
Silla de ruedas rampa de impulso del ejercicio

Silla de ruedas rampa de impulso del ejercicio

en 2001 rompí mi espalda en un accidente de motocicleta a la edad de 19, dejándome paralizado del pecho hacia abajo. Cuando una persona se convierte en paralítico es importante mantener tus músculos en tus brazos bien tonificados. Las ruedas de mi si
Paquete plano láser corte silla

Paquete plano láser corte silla

Inspirado en un movimiento terrible en mi caminar piso 3 Apartamento el verano pasado que decidí hacer mover paquete agradable, ligero, plano usando un cortador láser. Como un estudiante universitario con un estilo de vida móvil, pensé que mis mueble
Silla de ruedas controlada ojo!

Silla de ruedas controlada ojo!

Personas que han perdido totalmente el uso de sus músculos no pueden funcionar sus propias sillas de ruedas.El sistema de Eyedrivomatic aprovecha ojo existente tecnología para permitir a los usuarios manejar sus sillas otra vez - con sólo los ojos de
Portador de la silla de ruedas

Portador de la silla de ruedas

es este Instructable para que un portador de la silla de ruedas sujetar a la rótula de un coche estándar.  Esto es sobre todo para alguien que tiene para el transporte de pasajeros que necesitan silla de ruedas pero sin fácil acceso a la silla de rue
Silla de ruedas eléctrica controlador

Silla de ruedas eléctrica controlador

Historia:Mi amigo vino a mí con una simple petición. Para reparar su silla de ruedas eléctrica después de que fue dañado por rayo en el cargo.La silla estaba equipada con un controlador de tiburón, y de apertura, hubo graves flash-overs visible en el
Silla de ruedas rueda secadora

Silla de ruedas rueda secadora

Este instructivo está hecho en el contexto de un proyecto de cocreación con personas con discapacidad. El objetivo fue diseñar una bricolaje solución para un problema que tenían. En este caso el problema eran los neumáticos mojados de una silla de ru
Robot controlado por cerebro de silla de ruedas

Robot controlado por cerebro de silla de ruedas

presentación de nuestro proyecto de independencia es ampliar nuestras sillas de ruedas Brain-Controlled anterior (1er Premio del desafío de Salud Humana en coordinación con charque) del proyecto en un nuevo diseño que utiliza una combinación revoluci
Cómo fabricar, configurar e instalar una cámara de sistema de copia de seguridad en una silla de ruedas

Cómo fabricar, configurar e instalar una cámara de sistema de copia de seguridad en una silla de ruedas

sistemas de cámara de vista posterior usados en automóviles pueden fabricados, configurados e instalados en sillas de ruedas de manera que los usuarios pueden aumentar su campo de visión. Nuestro objetivo es diseñar a una guía paso a paso que permite
Entrenador de fitness para usuarios de silla de ruedas (Kabelboy)

Entrenador de fitness para usuarios de silla de ruedas (Kabelboy)

Este gadget es para mover una silla de ruedas en el lugar con fines de acondicionamiento físico. Consiste en 2 rodillos de tubos que llevan la silla de ruedas, una cadena y una rueda volante que se extiende el movimiento del usuario. Para ingresar o
Silla de ruedas controlada por el cerebro

Silla de ruedas controlada por el cerebro

Hola!  Muchas personas han escrito diciendo que están construyendo una silla de ruedas de Brain-Controlled, y eso es genial!  Esperamos poder ayudar a que conseguir a través de las partes duras, pero algunos de ustedes no necesitan alguna ayuda (tal
Instrucciones completar maqueta de Slide diseño de pista de subida/bajada de Center-Mounted estriberas en sillas de ruedas eléctricas

Instrucciones completar maqueta de Slide diseño de pista de subida/bajada de Center-Mounted estriberas en sillas de ruedas eléctricas

reposapiés montada en el centro Levante para guardarse debajo del asiento bien y bajar a implementarse. Un mecanismo para la operación independiente de estiba reposapiés e implementación no está incluido en sillas de ruedas de poder de mercado y usua
Instrucciones para completar la maqueta de la pista Slide diseño de elevación/descenso de reposapiés montada en el centro en sillas de ruedas eléctricas

Instrucciones para completar la maqueta de la pista Slide diseño de elevación/descenso de reposapiés montada en el centro en sillas de ruedas eléctricas

instrucciones para completar la maqueta de la pista Slide diseño de elevación/descenso de reposapiés montada en el centro en sillas de ruedas eléctricasReposapiés montada en el centro Levante para guardarse debajo del asiento bien y bajan a implement
Sencillo derribar taburete hecho de madera contrachapada (paquete plano)

Sencillo derribar taburete hecho de madera contrachapada (paquete plano)

me dieron unas hojas de 90 x 180 cm (3 x 6') de madera ligeramente usado que estoy en el proceso de reasignación.Desde que tengo uso de un par de sillas extras de vez en cuando, recientemente saqué este taburete ranurado (paquete plano) en Sketchup.H