Pecera de MDF gabinete (1 / 5 paso)

Paso 1: proyecto

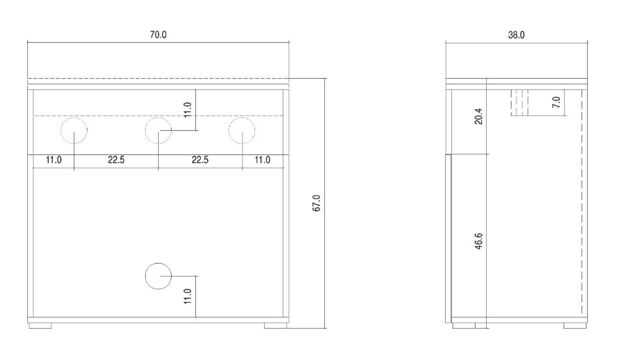
El objetivo fue hacer el look gabinete tan ascética como sea posible. He decidido que el gabinete debe ser inferior a un estándar, algo así como 70cm, porque generalmente estoy sentada en el coche buscando el tanque de, que es la altura correcta en mi caso.  El proyecto es realmente, sólo dos cosas son diferentes de tentativa estándar. La base está hecha de mdf doble (atornillada) y debajo de la base es tipo de viga de 3 piezas de mdf del mismo tamaño (otra vez todos tres piezas atornilladas) y atornillado a la parte inferior de la base para evitar la flexión de la base. Parece demasiado esfuerzo para 112l tanque pero hemos decidido pintar el armario, y para evitar que pequeñas grietas en la pintura de gabinete tha tiene que ser bastante rígido. La base de la pecera es ~ 70x40cm (69.5x38cm).

Artículos Relacionados

Medios de comunicación de casa de campo o gabinete de la TV

Medios de comunicación de casa de campo o gabinete de la TV

La calidad de muebles asequibles disponibles estos días parece estar empeorando. El uso de aglomerado recubierto con un laminado fino sin duda que para el duradero muebles, por lo que parecía apropiado mostrar cómo hacer esta casa sólida estilo TV o
Frambuesa Pi impulsado máquina Arcade de la tapa de la barra

Frambuesa Pi impulsado máquina Arcade de la tapa de la barra

Estaba navegando cuando me topé con rbates4 y su máquina de arcade de frambuesa Pi powered Instructables.Pensé hey que tengo un repuesto monitor DVI, un X-arcadepalo y un deseo de juguetear con el microordenador de la Raspberry Pi. Voy a tener que co
Cultivos hidropónicos crecer armario

Cultivos hidropónicos crecer armario

Quería construir un sistema hidropónico que podría poner casi en cualquier lugar y continuaría a funcionar sin la atención constante que requieren de muchos sistemas. Decidí construir dentro de un gabinete de metal y usar controladores de Phidgets pa
Gabinete clásico Arcade

Gabinete clásico Arcade

Este proyecto fue realizado por un miembro de la comunidad de FirstBuild que quería construir un arcade gabinete. Querían utilizar el ShopBot en construir primero y esencialmente "Imprimir" del gabinete. Sus prioridades se concentran en la facil
Darkade - gabinete de la arcada Bartop

Darkade - gabinete de la arcada Bartop

Durante mucho tiempo he querido un arcade para revivir los antiguos juegos clásicos de mi infancia. Tiene mucho de inspiración para la construcción de mina de la gente en Instructables. La mayoría de los materiales utilizados fueron reciclada o recic
Gabinete superior barra de MAME

Gabinete superior barra de MAME

Este construyó un par de años y han sido significado para compartirlo pero no encontrado el tiempo hasta ahora. Como soy de una edad determinada, pasé mucho tiempo (y dinero) con mis compañeros en la tienda de chip y arcadas juegos arcade original. H
Gabinete de altavoz coaxial

Gabinete de altavoz coaxial

Hola todo el mundo,Este insuperable es mostrarle cómo hacer un altavoz decente usando un cono de altavoz coaxial. Cuando todo es dicho y hecho, la fuente de audio será un cable aux y la caja tendrá un encendido y apagado del interruptor.Paso 1: compo
2-jugador Vewlix inspirado gabinete de la arcada con frambuesa Pi 2

2-jugador Vewlix inspirado gabinete de la arcada con frambuesa Pi 2

En primer lugar, quiero decir que la inspiración para esta construcción es debido a ThereIs0nly0ne y su increíble gabinete de la arcada. Sabía nunca podría construir uno exactamente como el suyo, yo no soy experto que y tengo una decente-lugar/herram
Gabinete de Pedestal 4 jugadores Arcade para MAME

Gabinete de Pedestal 4 jugadores Arcade para MAME

Esto le mostrará cómo construí mi reproductor 4 gabinete de pedestal MAME. Hay un montón de cosas que puedes personalizar a tu gusto. Voy a mostrar cómo hice mío, usted puede sentir libre de modificar a su gusto. Esto contiene un estándar de windows
Pecera mesa de centro

Pecera mesa de centro

Tengo la idea de construir esta mesa pecera después de mirar en línea y verlos a la venta por unos $700.http://www.Walmart.com/IP/Aqua-Square-Coffee-Table...http://www.4fishtank.com/Table%20aquariums.htmY los otros depósitos de bricolaje no muy bien
Vewlix 'Slim' Arcade gabinete / de la máquina

Vewlix 'Slim' Arcade gabinete / de la máquina

Una máquina de arcade DIY basada en el japonés Vewlix sit down diseño. Esto utiliza un monitor de 24" en lugar de 32" - de ahí el título de 'Slim'. Habilidades de carpintería intermedia necesarias.Materiales:MDFTiras de maderaTornillosMolde de a
Puertas decorativas del gabinete o armario

Puertas decorativas del gabinete o armario

Ser capaz de usar un router para hacer puertas decorativas de cocina le permite reemplazar viejas puertas de los armarios con puertas de hágalo usted mismo en cualquier tamaño o diseño.Un nuevo router Bosch es una inversión que vale la pena que le co
Cómo hacer una cocina isla de un conjunto menor de gabinetes de cocina

Cómo hacer una cocina isla de un conjunto menor de gabinetes de cocina

aquí es lo que mi comedor parecía que antes de empezar mi reno. me ripeo esta toda la pared de armarios fuera de todos modos para mi reno pero estoy todo sobre re-uso/re-tiemposYa que quería una isla de cocina y tuve suerte de tener un juego extra de
Oculto gabinete

Oculto gabinete

este es un gabinete oculto lo suficientemente grande como para caber dos mandos a distancia, una billetera, un reloj y un montón de objetos pequeños. Usando a esta guía para dirigirlo a través de este proyecto facilitará el proceso. El gabinete es oc