PARA HACER UN BATTRY FUNCIONA LA LUZ DEL TUBO!! (2 / 4 paso)

Paso 2: Qué hacer

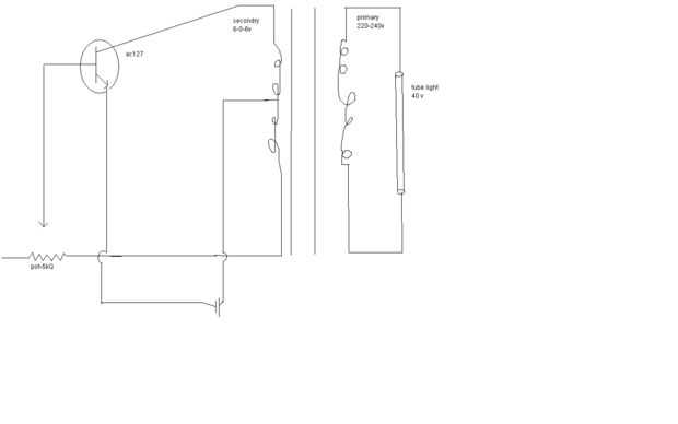
conectar el componente como se muestra en el diagrama del circuito.

Artículos Relacionados

3 consejos para hacer el horno funcione fácilmente

3 consejos para hacer el horno funcione fácilmente

¿Te has sentido como su horno tiene una mente propia? ¿Parece que "puntos calientes" que cocinar cosas más rápidamente en algunas partes del horno que otros, o quizás parece no haber ninguna diferencia discernible entre los ajustes de calor?Yo s
Una uva para hacer un espectáculo de luz de microondas

Una uva para hacer un espectáculo de luz de microondas

Hola. Este es mi primer instructable. Voy a mostrar lo que sucederá cuando se coloca una uva en el microondas.Paso 1: Cosas que necesitaTe hace falta:1 plato de microondas. cualquiera va a hacer.1 uva1knifeCortar la uva casi por la mitad, así que un
Cómo cortar correctamente, el taladro y plexiglás curva para hacer un trípode gopro multi-uso.

Cómo cortar correctamente, el taladro y plexiglás curva para hacer un trípode gopro multi-uso.

Este instructable es en el concurso "¡ UP!" y me gustaría mucho si usted podría tomar el tiempo para votar si usted siente se merece el voto, gracias! ¡ Disfrute!Había estado haciendo algún trabajo con plexiglás últimamente y encontró algunas bu
Mina de nube: Cielo Digital captura a CNC para hacer punto - parte 2 (diseño)

Mina de nube: Cielo Digital captura a CNC para hacer punto - parte 2 (diseño)

Hola y Bienvenidos de nuevo a la segunda instalación de nube, donde describo lo que va a diseñar una prenda original usando técnicas digitales que pueden ser (algo) fácilmente incorporado en el proceso de crear una prenda con Stoll, tecnología CNC pa
Reutilizar las viejas cintas de la impresora y la cinta de vídeo para hacer cuerda!

Reutilizar las viejas cintas de la impresora y la cinta de vídeo para hacer cuerda!

Reutilizar viejas cintas de la impresora y la cinta de vídeo para hacer cuerda!no im no hablando de matriz de puntos cintas entintadas {aunque lo haránel trabajo simplemente ser desordenado} im refiriéndose a launo recibe de esas impresoras de foto p
Caja de té a la luz del té

Caja de té a la luz del té

Esto fue muy divertido hacerlo!Paso 1: Preparar la caja de té Abrir la caja de la costura lateralCaja endecha plana sobre la superficie de trabajo y abrigo con gessoPaso 2: Hacer que la ventana Para la ventana he utilizado una ventana de madera aglom
Mascotas sepulcro marcador y molde para hacer

Mascotas sepulcro marcador y molde para hacer

Este es un vídeo sobre cómo hacer y usar un molde.El molde es para hacer un marcador grave para un animal doméstico. Puede utilizarse una y otra vez si quieres hacerlo otra vez o tal vez hacer uno para un amigo que ha perdido su mascota. Con los años
Cómo utilizar un CFL viejo para ahorro de energía y un buen tubo de luz

Cómo utilizar un CFL viejo para ahorro de energía y un buen tubo de luz

Hola este instructable sobre cómo nos CFL viejo para ahorro de energía y buena iluminaciónlas súplicas vote por mí y no cooment y pasar por alto mi error de gramática...Paso 1: tomar una CFL viejo tomar un CFL viejo por este CFL puede funcionar un tu
Luz del té para dos - hacer su propia lámpara colgante de un juego de té

Luz del té para dos - hacer su propia lámpara colgante de un juego de té

soy un geek de té y quería algo en mi cocina para reflejarlo.  ¿Qué sería mejor que un juego de té que cuelgan del techo?! Esta luz nunca falla obtener un Comentario de personas que ven por primera vez y $ 250 es mucho más barato que una única luz de
Espejo para hacer fuego con la luz del sol.

Espejo para hacer fuego con la luz del sol.

por tonytran2015 (Melbourne, Australia)Figuras: Invertir secuencias de encender un cigarrillo por el sistema de 5seconds y 1 segundo.Este post muestra cómo configurar un espejo y utilizarlo para comenzar rápidamente el fuego utilizando luz solar mode
Cómo (no.) Para hacer una lámpara electroluminiscente Edison | EL casero "Bobina" luz nocturna

Cómo (no.) Para hacer una lámpara electroluminiscente Edison | EL casero "Bobina" luz nocturna

En este instructable, voy a mostrarte Cómo para hacer un Edison lámpara electroluminiscente. Bueno, eso fue lo que fue originalmente este Instructable.Pensé en colocar EL alambre dentro de un tarro de masón en una forma zigzag arriba y abajo, que har
Cómo hacer tu propio sable de luz! (para combatir)

Cómo hacer tu propio sable de luz! (para combatir)

Lo que necesita:soldadura de hierropistola de soldar44" claro 1/2" PVC pipaDos luces LED de 1 metro (baratas en HobbyKing)Una batería (tengo un Zippy Flightmax 1000mAh 2S1P 15C también de HobbyKing)Cables de positivo/negativoEnchufes macho/hembr
Ajuste del brazo Makita Tabla VI Rip para hacer rectificaciones de madera

Ajuste del brazo Makita Tabla VI Rip para hacer rectificaciones de madera

Makita MLT 100este instructable le mostrará cómo ajustar el rip Sierra brazo dentro de una hoja de papel de ser el nivel y cuadrado a la hoja de sierra.Soy un D.I.Y.er ávido y exactitud es todo para mi.herramientas necesarias:llave AlenPlaza.Paso 1:
Hacer un gran poco luz del libro de componentes electrónicos reciclados

Hacer un gran poco luz del libro de componentes electrónicos reciclados

este tip describe un gran pequeño libro luz procedente de un cargador de celular viejo y una luz de teclado de computadora. No tengo muchos detalles para compartir, lo que hace es bastante simple.El objetivo de este instructable es compartir un conce