Paso 1: El diseño

Decidí desarrollar un aire / vapor motor conducido básicamente porque es barato, simple, seguro y accesible.
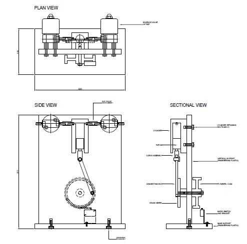
El motor funciona básicamente como sigue:
1. el volante actúa como rueda una cam y la mosca.
2. justo antes de punto muerto superior (TDC) que opera al microinterruptor mediante el perfil levantado.
3. el interruptor micro causa corriente fluya a la válvula de solenoide de entrada y cierre la válvula de solenoide de escape.
4. el aire fluye a través de la válvula de entrada de presurizar el cilindro.
5. el pistón se desplaza hacia abajo haciendo que el cigüeñal y el volante para girar.
6. justo antes de fondo punto muerto (ASV) el perfil levantado totalmente transcurrido el interruptor micro causando que cambie el estado, por tanto, abrir la válvula de solenoide de escape y cierre la válvula de solenoide de entrada.
7. inercia hace que el volante a guardar el girar y el pistón pase el TDC y el ciclo comienza otra vez.
Diseños completos se muestran en los dibujos conectados - no dude en modificar y / o compartir.